Neem nu contact op! Bel 050-3133000


K. de Vriezestraat 33

9741 AG Groningen

€ 239.000 k.k.

Woonoppervlakte
85m2

Bouwjaar
1939

Omschrijving


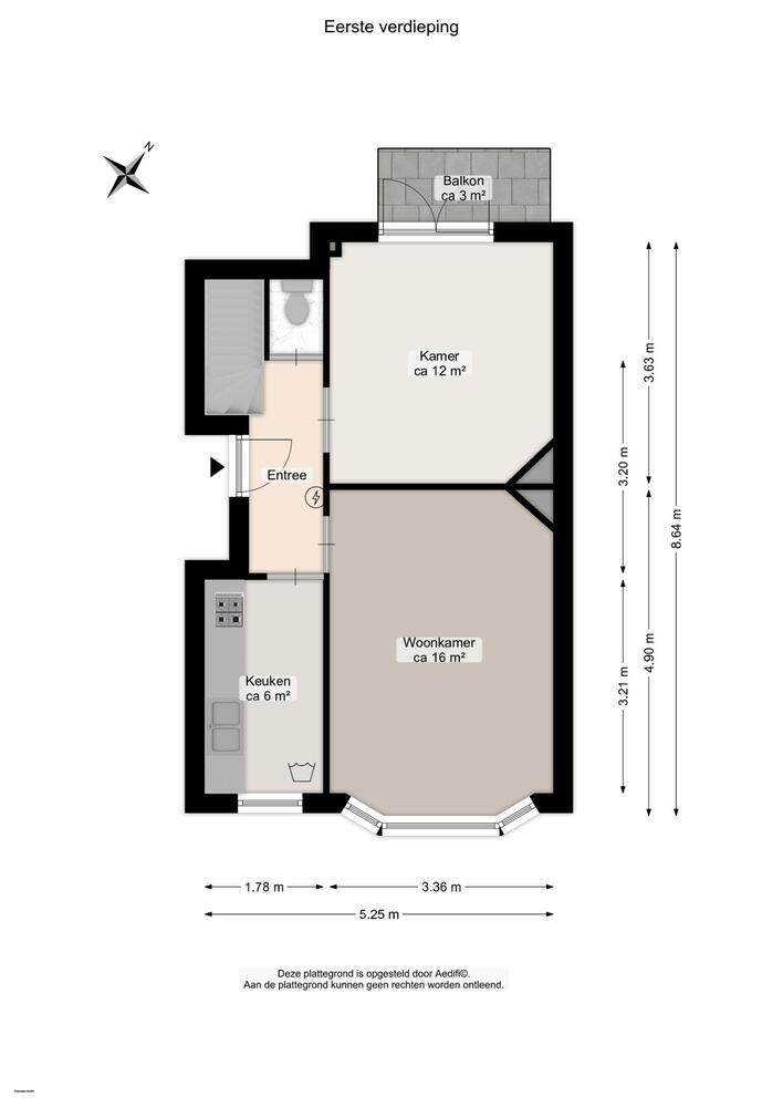
Studentenvergunning! Vier ruime kamers en een dakterras, ruim plaats voor vier studenten en direct beschikbaar! Aan de rand van Oranjebuurt gelegen, met zicht op het spoor, deze ruime bovenwoning heeft omzettingsvergunning voor vier studenten en staat leeg. Vier ruime slaapkamers verdeeld over twee verdiepingen, eenvoudige keuken en badkamer. Een balkon én een groot dakterras. In redelijke staat van onderhoud. Fietsenberging in de brandgang.
Ideaal gelegen tussen Noorderplantsoen, centrum en Zernike.

Open portiek met trapopgang en bordes.
Entree/hal met toilet.
Voorkamer (ca. 16 m2) met schouw en erker.
Achterkamer (ca. 12 m2) met openslaande deuren naar het achter gelegen balkon. Dubbel glas.
Eenvoudige keuken (ca. 6 m2).
Verdieping: overloop met vaste kast voorzien van CV ketel (2024, huur). Deur dakterras (ca. 4,5 x 2,7 m.)
Slaapkamer 3 voorzijde (ca. 13 m2). Enkel glas.
Slaapkamer 4 achterzijde (ca. 12 m2). Dubbel glas.
Eenvoudige badkamer (ca. 3 m2) met vlizoluik en doorloop naar kleine extra kamer (ca. 5 m2).

In de brandgang achter de woning een fietsenberging.

Bijzonderheden:
- Deels enkel glas
- redelijk onderhouden
- ideale locatie op korte afstand van centrum en Zernike
- direct beschikbaar.

Kenmerken

  • Bouwvorm: Bestaande bouw
  • Daktype: Samengesteld dak
  • Energieklasse: D

Deze woning is al verkocht door ben-s.nl!

Wilt u ook uw woning door een makelaar van ben-s laten verkopen? Vul dan het onderstaande formulier in.