Neem nu contact op! Bel 050-3133000


Frans van Mierisstraat 38

9718 SV Groningen

€ 209.000 k.k.

Woonoppervlakte
57m2

Bouwjaar
1959

Omschrijving


Aan de rand van de Schildersbuurt gelegen, compleet gemoderniseerde portiekwoning met nette keuken en badkamer, twee slaapkamers, twee balkons en een inpandige fietsenberging.
Ring Groningen en uitvalswegen op drie autominuten, binnenstad en centraal station op 5 minuten fietsen. Volledig voorzien van dubbel glas. Verwarming middels blokverwarming, actieve en gezonde VVE.

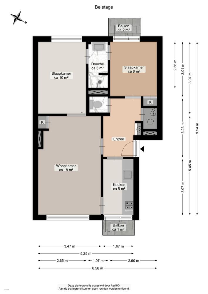
Indeling:
Ruime entree/hal met toilet, vaste kast en toegang tot alle vertrekken.
Gezellige en lichte woonkamer (ca. 18 m²) met laminaatvloer en deur naar het voorgelegen balkon en deur naar de keuken.
Twee slaapkamers van ca. 10 en 8 m², beide met laminaat vloer en toegang tot de badkamer.
Moderne badkamer (ca. 3 m2) met inloopdouche en wastafelmeubel.
De grote slaapkamer met toegang naar het balkon aan de achterzijde.
Gesloten en comfortabele keuken voorzien van alle gemakken, inbouwapparatuur: vaatwasser, koelkast, oven, gaskookplaat en afzuigkap, deur naar balkon aan de voorzijde.
Ruime fietsenberging in het souterrain.

INFO:
- verwarming middels blokverwarming;
- ideaal voor starters!;
- warm water middels eigen CV-ketel Intergas 2015;
- geheel voorzien van dubbele beglazing;
- voorzien van muur- en dakisolatie;
- eigen inpandige berging;
- VvE actief; bijdrage € 122,- p/mnd
- voorschot stookkosten € 65 per maand.

Kenmerken

  • Bouwvorm: Bestaande bouw
  • Daktype: Plat dak
  • Energieklasse: D

Deze woning is al verkocht door ben-s.nl!

Wilt u ook uw woning door een makelaar van ben-s laten verkopen? Vul dan het onderstaande formulier in.