Neem nu contact op! Bel 050-3133000


Herestraat 95a

9711 LE Groningen

€ 335.000 k.k.

Woonoppervlakte
91m2

Bouwjaar
1913

Omschrijving


Uniek! Karakteristieke en rustig gelegen bovenwoning (maisonnette) met ruim zonnig dakterras, gezellige woonkamer, twee ruime slaapkamers en een leuke woonkeuken in het hart van Groningen!
Bent u op zoek naar rust, maar toch het bruisende centrum van Groningen op twee minuten lopen, deze prachtige bovenwoning aan de Herestraat combineert authentieke charme met hedendaags wooncomfort en is ideaal voor wie houdt van het stadse leven, maar ook van privacy en ruimte.

Indeling:
Entree op de begane grond met opgang naar het bordes.

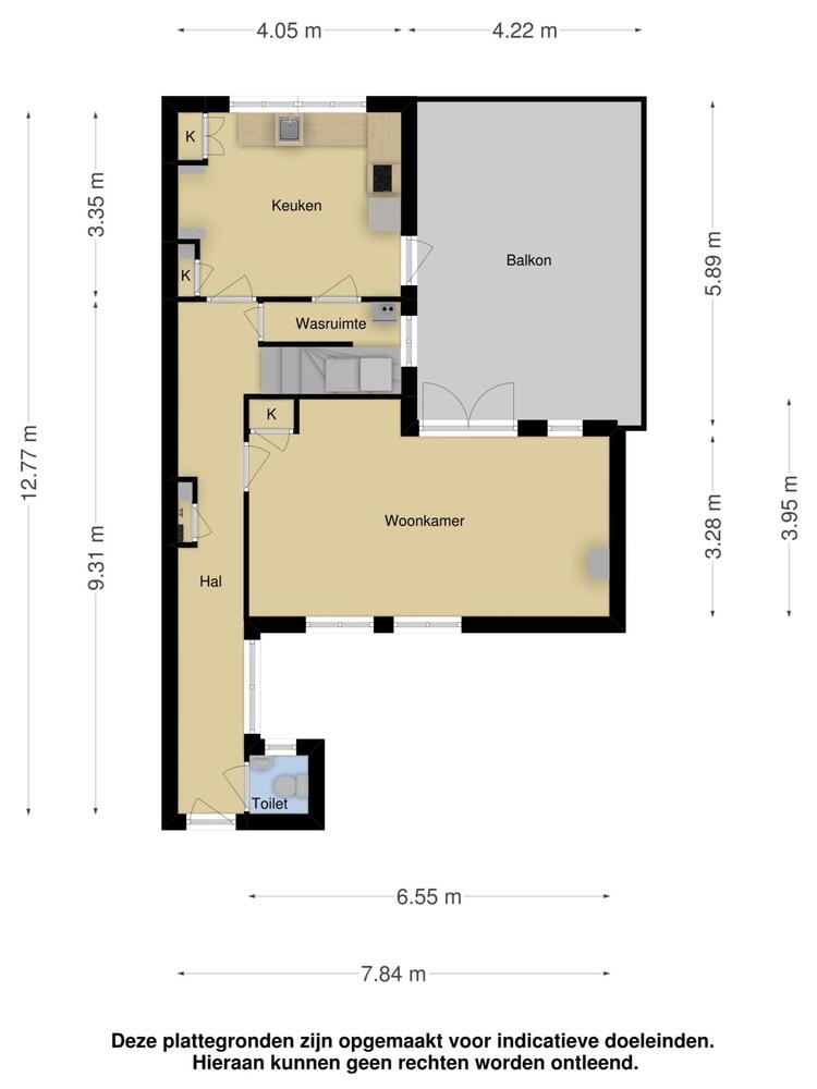
Eerste verdieping:
Via de entree en een hoge gang aan het atrium komt u binnen. De gang is voorzien van een toilet en toegang tot de woonkamer en keuken.
De gezellige woonkamer (ca. 26 m²) ligt aan het atrium en kijkt op het heerlijke besloten dakterras. Dankzij de hoge plafonds, de grote ramen en het parket krijgt deze ruimte veel lichtinval en een warme sfeer. De woonkamer is voorzien van inbouwkasten en heeft openslaande deuren naar het terras.
Dit beschutte terras (ca. 23 m²) ligt op het zonnige westen, zodat u 's middags en 's avonds optimaal van de zon kunt genieten – een ware oase van rust midden in de stad!
De woonkeuken (ca. 13 m²) grenst eveneens aan het dakterras en heeft grote ramen die zorgen voor een prettige lichtinval. De keuken is compleet uitgerust met inbouwapparatuur, waaronder een kookplaat, afzuigkap, combi oven-magnetron, koel-vriescombinatie en vaatwasser, waardoor het een ideale ruimte is voor culinaire momenten en gezellig tafelen. Aan de keuken ligt de bijkeuken met de witgoedaansluitingen en CV ketel (HR combi 2024).

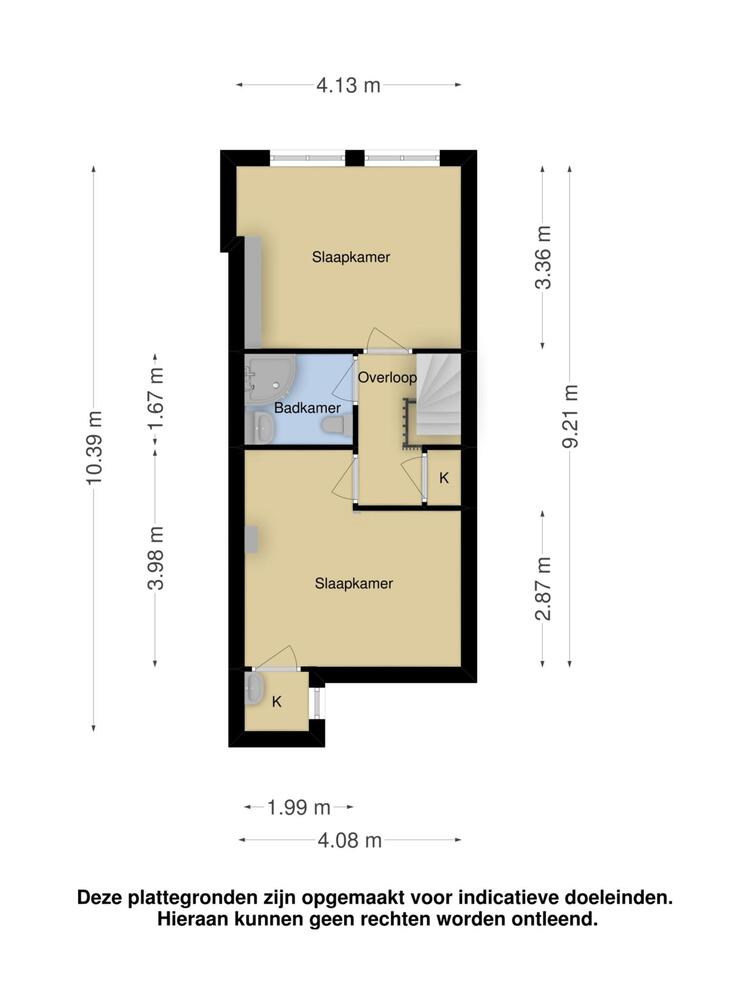
Tweede verdieping:
Op de tweede verdieping vindt u een overloop met vaste kast en toegang twee ruime slaapkamers van ca. 13 en 15 m². Een kijkt uit op op het rustige groen aan de achterzijde. De grootste slaapkamer beschikt over een vaste kast met wastafel, ideaal voor extra comfort en bergruimte. De nette badkamer is voorzien van een douchecabine, wastafel en een sanibroyeur toilet.

Bijzonderheden:
- uitermate charmante woning
- passieve vereniging van eigenaren (drie appartementen en de ondergelegen winkel), welke wel is ingeschreven in de kamer van koophandel
- hoofddak is vervangen en geïsoleerd
- deels voorzien van dubbel glas.

Kenmerken

  • Bouwvorm: Bestaande bouw
  • Daktype: Samengesteld dak
  • Energieklasse: C

Deze woning is al verkocht door ben-s.nl!

Wilt u ook uw woning door een makelaar van ben-s laten verkopen? Vul dan het onderstaande formulier in.