Neem nu contact op! Bel 050-3133000


Bankastraat 28

9715 CC Groningen

€ 299.000 k.k.

Woonoppervlakte
83m2

Bouwjaar
1905

Omschrijving


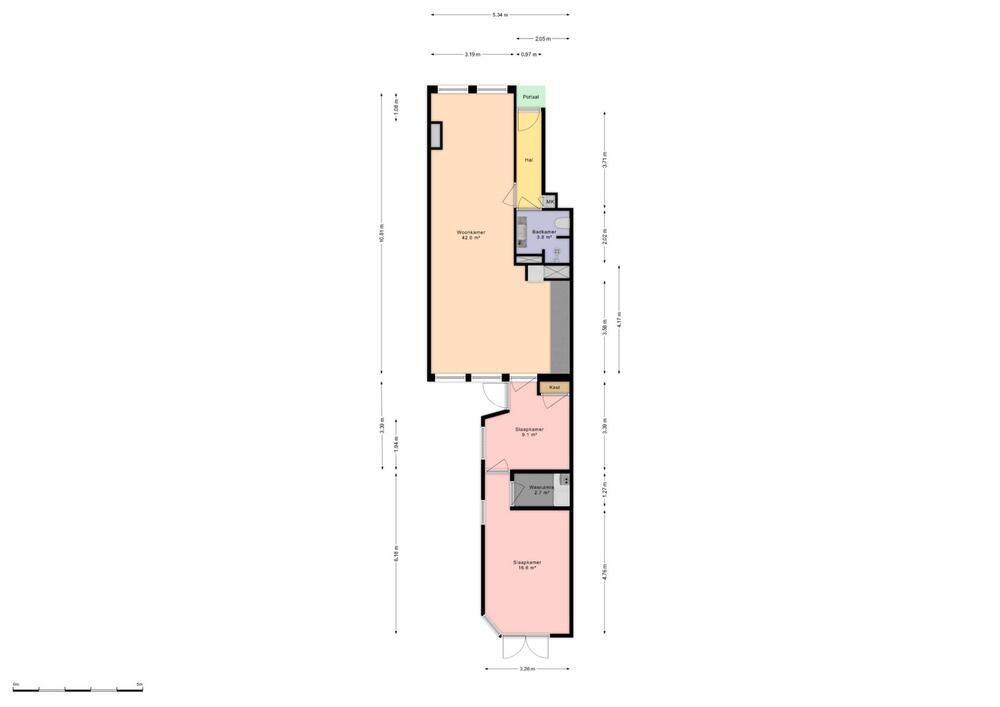
Fraai aan een ventweg van de Bedumerstraat gelegen benedenwoning met royale woonkamer en open woonkeuken (totaal ca. 44 m2), een werkkamer, en een heerlijk ruime tuingerichte slaapkamer die aansluit op de grote zonovergoten achtertuin. Deze sfeervolle woning is gelegen op loopafstand van het Noorderplantsoen, het Noorderstation, de binnenstad en de ring van Groningen direct om de hoek. Sfeervolle woning die nagenoeg volledig is voorzien van geïsoleerde betonvloeren en dubbel glas.

Indeling:
Entree/hal met toegang tot de badkamer en woonkamer.
Heerlijk ruime en lichte doorzonwoonkamer met open keuken. De hoge plafonds en ramen geven deze ruimte veel licht en derhalve veel gevoel van ruimte. Voorin de woonkamer bevindt zich een gezellige schouw met open haard.
De keuken is netjes en voorzien van 4-pits gaskookplaat, afzuigkap, combi oven, vaatwasser en koel- vriescombinatie. Vanuit de keuken loop je door naar de uitbouw.
De badkamer ligt aan de hal en is verzorgd en voorzien van douchehoek, hangtoilet en een handig badkamermeubel.
Achter de keuken ligt een grote volledig geïsoleerde uitbouw met daarin de overige vertrekken.
De eerste slaap-werkkamer (ca. 9 m²) is voorzien van een vaste kast en heeft toegang tot de tuin.
Via deze kamer kom je uit in een tussenhal met praktische bijkeuken (met de wasmachineaansluiting en CV ketel) en vervolgens kom je in de royale tweede slaapkamer (ca. 17 m²). Deze kamer is rustig gesitueerd aan de tuin en heeft openslaande deuren op zuidoost. Ook hier veel lichtinval door de grote ramen van grond tot plafond waardoor je de beleving van de tuin optimaal kunt ervaren.

Tuin: naast de uitbouw (ca. 15 m2) en achter de slaapkamer nog eens 52 m2. De tuin is volop genieten: georiënteerd op zuidoosten ('s zomers de gehele dag in de zon) en met een gezellig terras, borders en een veranda. De achterliggende bebouwing ligt op ruime afstand, waardoor je voldoende gevoel van privacy ervaart.

Bijzonderheden:
- goed onderhouden en recentelijk nagenoeg volledig geschilderd
- diepe tuin op het zuidoosten
- nette keuken en badkamer;
- energielabel D;
- passieve VvE, wel ingeschreven in Kvk
- SNN waardevermeerderingssubsidie (4k) nog beschikbaar.

Aanvaarding in overleg.

Kenmerken

  • Bouwvorm: Bestaande bouw
  • Daktype: Samengesteld dak
  • Energieklasse: D

Deze woning is al verkocht door ben-s.nl!

Wilt u ook uw woning door een makelaar van ben-s laten verkopen? Vul dan het onderstaande formulier in.