Neem nu contact op! Bel 050-3133000


Van Brakelplein 17a

9726 HC Groningen

€ 325.000 k.k.

Woonoppervlakte
90m2

Bouwjaar
1934

Omschrijving


KORT
Met prachtig uitzicht over een fraaie vijverpartij en groen ligt deze sfeervolle, lichte en royale (90 m2) bovenwoning (met fietsenberging) in een van de meest gezellige buurten van Groningen; de Zeeheldenbuurt. Lekker ruim, zeer verzorgd en in 2021 professioneel gemoderniseerd. Instapklaar!

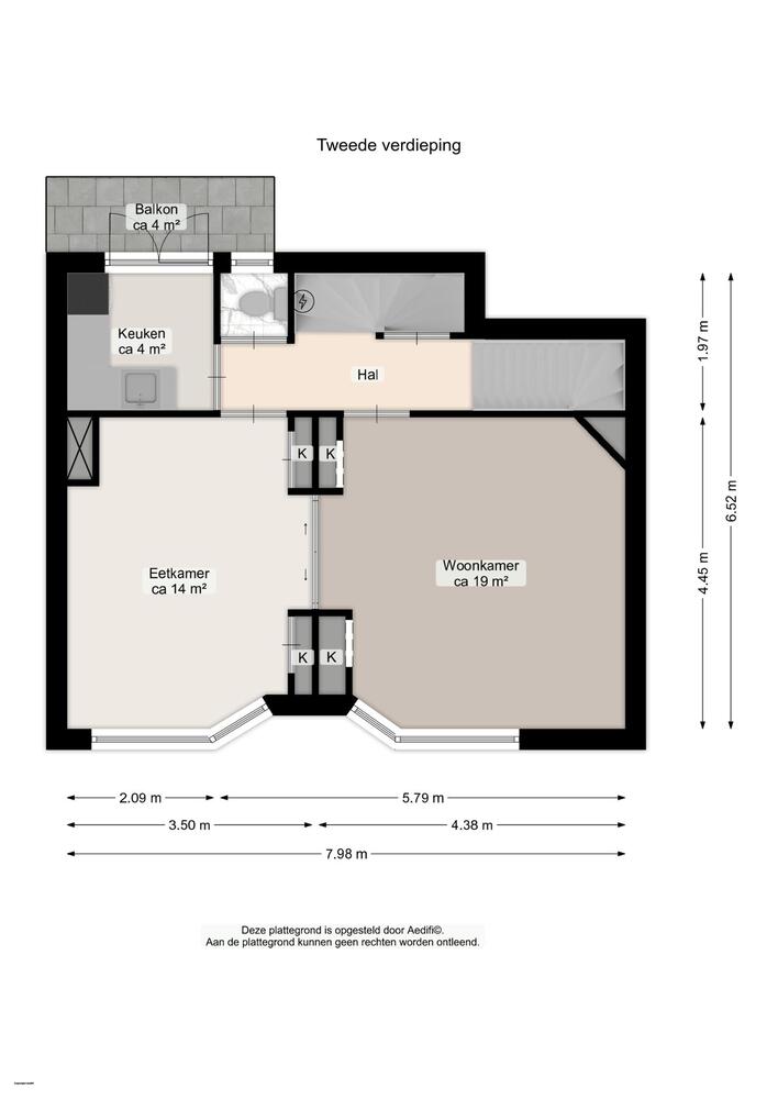
INDELING
Begane grond: gezamenlijk portiek en trap naar de eerste verdieping.
Woning: entree, hal en toilet, trapopgang, overloop, sfeervolle en lichte woonkamer-en-suite (34 m2) met houten vloer, suitedeuren en vaste kasten, gesloten compacte keuken van 4 m2 (uit 2021) met keukenblok in hoekopstelling v.v. inbouwapparatuur. Via de keuken is het zonnige balkon (4 m2) bereikbaar.
Verdieping: overloop, 2 slaapkamers (12 en 9 m2), beide met inbouwkasten en een royale en lichte badkamer van 6 m2 (uit 2021) met douchehoek, 2e toilet en wastafel.

ALGEMEEN
- met 5 zonnepanelen;
- meterkast van 2021;
- cv-verwarmd d.m.v. HR combiketel (2021);
- dakisolatie;
- dubbel glas;
- weinig energielasten;
- energielabel C;
- bovenwoning met fantastisch uitzicht;
- woonoppervlakte 90 m2;
- inclusief fietsenberging;
- royaal en leuk huis.

LET OP
- standaard waarborgsomregeling van toepassing;
- ouderdomsclausule van toepassing;
- 'eigenaar niet zelf bewoond' van toepassing;
- bekijk onze uitgebreide plattegrond op funda;
- aanvaarding in overleg. Kan snel!

Kenmerken

  • Bouwvorm: Bestaande bouw
  • Daktype: Zadeldak
  • Energieklasse: C

Deze woning is al verkocht door ben-s.nl!

Wilt u ook uw woning door een makelaar van ben-s laten verkopen? Vul dan het onderstaande formulier in.