Neem nu contact op! Bel 050-3133000


Zwarteweg 12

9717 HR Groningen

€ 215.000 k.k.

Woonoppervlakte
39m2

Perceelopervlakte
33 m2

Soort bouw
EENGEZINSWONING

Omschrijving


Op steenworpafstand van het Noorderplantsoen gelegen, karakteristieke, gezellige en nette schipperswoning met karakteristieke en knusse woonkamer voorzien van open keuken en aan de achterzijde een toilet/douche combi op de begane grond. Verder een gezellige slaapzolder op de verdieping. Deze woning is in het verleden compleet gemoderniseerd en voorzien van dakisolatie en dubbel glas. Achter de woning ligt een kleine zonnige plaats van ca. 3 m2.

Indeling:
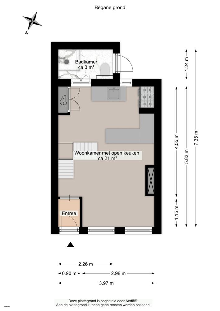
Begane grond: entree/tochtportaal.
Sfeervolle woonkamer (ca. 21 m² met open keuken) met hoog plafond, een schouw, houten vloerdelen, doorloop naar de achtergelegen badkamer en een open bordestrap naar de verdieping.
Leuke semi-open keuken voorzien van een gezellige bar met bovenkasten en een keurig keukenblokje met vrijstaand combigasfornuis en veel bergruimte in boven en onderkasten. Een gevelraam en twee dakramen geven extra lichtinval.
Toilet/douchecombinatie (ca. 3 m2) met toilet, douche, wastafel en aansluiting wasmachine. Deur naar de plaats.
Verdieping:
Gezellige slaapzolder van ca. 15 m².
Kleine plaats op het zuiden.

Bijzonderheden:
- Vraagprijs betreft een vanafprijs
- uitermate sfeervol
- Ideale starterswoning
- gezellige karakteristieke straat.

Kenmerken

  • Woonhuistype: Tussenwoning
  • Bouwvorm: Bestaande bouw
  • Daktype: Zadeldak
  • Energieklasse: F

Deze woning is al verkocht door ben-s.nl!

Wilt u ook uw woning door een makelaar van ben-s laten verkopen? Vul dan het onderstaande formulier in.