Neem nu contact op! Bel 050-3133000


Hortensialaan 56

9713 KR Groningen

€ 219.500 k.k.

Woonoppervlakte
42m2

Bouwjaar
1928

Omschrijving


KORT
Charmante en gemoderniseerde benedenwoning met tuin in een rustige straat in de Bloemenbuurt van Groningen. De woning voelt verrassend ruim aan en is goed geïsoleerd (B-label). Met een fraaie achtertuin is dit een heerlijke plek om te wonen. Plaatje om te zien!

OMGEVING
Voorzieningen als winkels, horeca, sportvoorzieningen en scholen bevinden zich op loopafstand. Het groene Pioenpark ligt op steenworp afstand, en binnen vijf minuten fietsen ben je op de Grote Markt in het gezellige stadscentrum van Groningen. Ook uitvalswegen als de A7 en de A28 zijn uitstekend te bereiken.

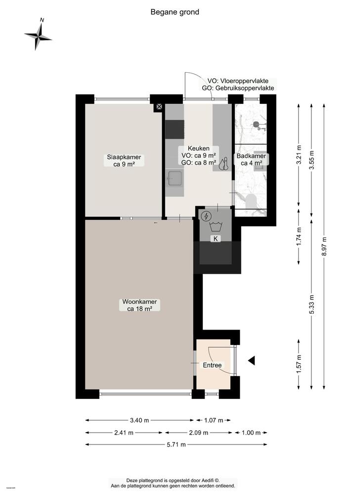
INDELING
Entree met hal, lichte en sfeervolle woonkamer (18 m2) met toegang tot de nette inbouwkeuken (2023) en de naast gelegen slaapkamer (9 m2). De moderne in 2023 vernieuwde keuken (ca. 9 m2) is voorzien van inbouwapparatuur en biedt toegang tot de stijlvolle, ook in 2023 vernieuwde badkamer, uitgerust met een toilet, douche en wastafelmeubel. De keuken biedt via een tuindeur directe toegang tot de achtertuin.

TUIN
Een royale op het noordwesten gelegen aangelegde tuin (35 m2), die ontsluiting heeft via een achterom naar de brandgang en een binnenplaats, waar ook de berging (3 m2) is gelegen.

ALGEMEEN
- lekker instapklaar;
- wonen met lage woonlasten;
- energielabel B;
- HR cv-combiketel, eigendom (2020);
- grotendeels voorzien van dubbele beglazing (HR++);
- vloerisolatie;
- actieve VvE voor woning en berging, bijdrage totaal ca. € 93,- per maand;
- betreft een beschermd stadsgezicht;
- voldoende parkeergelegenheid in de directe omgeving.

LET OP
- standaard waarborgsomregeling van toepassing;
- bekijk onze uitgebreide plattegronden op funda;
- aanvaarding in overleg.

Kenmerken

  • Bouwvorm: Bestaande bouw
  • Daktype: Zadeldak
  • Energieklasse: B

Deze woning is al verkocht door ben-s.nl!

Wilt u ook uw woning door een makelaar van ben-s laten verkopen? Vul dan het onderstaande formulier in.