Neem nu contact op! Bel 050-3133000


Nijensteinheerd 253

9736 TT Groningen

€ 299.000 k.k.

Woonoppervlakte
112m2

Perceelopervlakte
176 m2

Bouwjaar
1985

Soort bouw
EENGEZINSWONING

Omschrijving


Fraai bij een speelplantsoentje en aan de rand van de groene wijk Beijum (dus op steenworpafstand van wandel- en recreatiegebied) gelegen, ruime, nette en uitermate gezellige tussenwoning met ruime voortuin, achtertuintje, drie slaapkamers en inpandige berging. Fraaie doorzonwoonkamer voorzien van open en moderne woonkeuken. Energielabel A, 10 zonnepanelen.

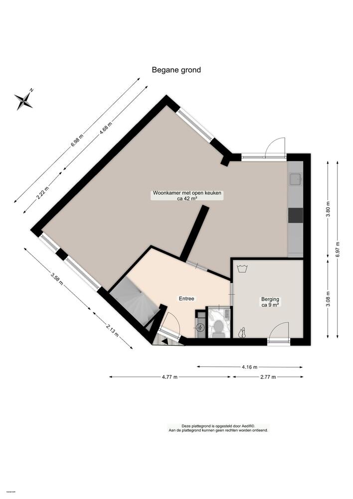
Begane grond:
Ruime entree/hal met toilet, trapopgang en toegang tot de bijkeuken en keuken/woonkamer.
Lichte doorzonwoonkamer met zicht op de voor- en achtertuin, tezamen met de keuken maar liefst 42 m2.
De keuken is modern (2022) en uitgerust met inbouwapparatuur: een vaatwasser, koelvries-combi, oven, inductie kookplaat met afzuigkap en veel bergruimte in boven- en onderkasten. Loopdeur naar de achtertuin.
Ruime bijkeuken (ca. 9 m2), met loopdeur naar de voortuin. CV-ketel (2016, eigendom) en de opstelplaats voor de wasmachine.

Eerste verdieping: overloop.
Drie ruime slaapkamers van 20, 11 en 10 m2. De grote slaapkamer is comfortabele en licht door twee dakramen. Vlizoluik naar de vliering.
De badkamer (ca. 3 m2) is eenvoudig maar netjes en voorzien van een douche en vaste wastafel.

vliering
De vliering is toegankelijk via een luik en biedt volop bergruimte.

Tuin en omgeving
De woning beschikt over een riante voortuin en een kleine maar zonnige achtertuin.
Recreatiegebied Kardinge, waar u kunt wandelen, fietsen en sporten ligt op korte afstand, evenals de ring van Groningen. Het centrum van de stad is binnen twintig fietsminuten bereikbaar. Verder staat Beijum bekend om zijn groene karakter met vele parkjes en wandelgelegenheden.

Bijzonderheden:
* Sfeervol, ruim en licht
* 10 zonnepanelen;
* Grotendeels geïsoleerd;
* Riante voortuin met zonnige ligging op het zuidwesten;
* Goede bereikbaarheid van uitvalswegen en openbaar vervoer.

Kenmerken

  • Woonhuistype: Tussenwoning
  • Bouwvorm: Bestaande bouw
  • Daktype: Schilddak
  • Energieklasse: A

Deze woning is al verkocht door ben-s.nl!

Wilt u ook uw woning door een makelaar van ben-s laten verkopen? Vul dan het onderstaande formulier in.