Neem nu contact op! Bel 050-3133000


Parkzijde 17

9713 WE Groningen

€ 275.000 k.k.

Woonoppervlakte
55m2

Bouwjaar
2019

Omschrijving


KORT
Een keurig en nieuw appartement (type maisonnette) op de kruising Merelstraat/Parkzijde in de Oosterparkbuurt in Groningen. Pal tegenover het groene Oosterpark en op loopafstand van supermarkten! Compact, nieuw, energiezuinig en op een heerlijke plek gelegen.

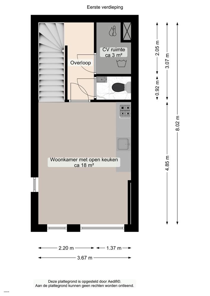
INDELING
Begane grond: entree en trapopgang.
Eerste verdieping: overloop, toilet, berging met cv-opstelling en lichte woonkamer (18 m2) met open keuken (voorzien van inbouwapparatuur).
Tweede verdieping: overloop, slaapkamer (14 m2) met leuk balkon (5 m2) en prachtig groen uitzicht op het park. Nette en royale badkamer (4 m2) met douche, wastafel en tweede toilet.

ALGEMEEN
- kleinschalig en fraai complex;
- totaal maar 7 appartementen;
- woonoppervlakte ca. 55 m2;
- bouwjaar (2019);
- gemeenschappelijke inpandige fietsenstalling (17 m2);
- energiezuinig (energielabel A);
- actieve VvE;
- maandelijkse bijdrage 85,- euro.

LET OP
- standaard waarborgsomregeling van toepassing;
- 'eigenaar niet zelf bewoond' van toepassing;
- bekijk onze uitgebreide plattegrond op funda;
- aanvaarding in overleg. Kan snel.

Kenmerken

  • Bouwvorm: Bestaande bouw
  • Daktype: Plat dak
  • Energieklasse: A

Deze woning is al verkocht door ben-s.nl!

Wilt u ook uw woning door een makelaar van ben-s laten verkopen? Vul dan het onderstaande formulier in.