Neem nu contact op! Bel 050-3133000


Briljantstraat 213

9743 NH Groningen

€ 349.000 k.k.

Woonoppervlakte
125m2

Perceelopervlakte
117 m2

Bouwjaar
1972

Soort bouw
EENGEZINSWONING

Omschrijving


Aan een rustig en kindvriendelijk hofje, in de wijk in Vinkhuizen, staat deze praktische en ruime tussenwoning uit 1972. De woning beschikt over een moderne keuken, vier slaapkamers verdeeld over twee verdiepingen en zonnige achtertuin en een vrijstaande stenen berging.
Uitermate geschikt voor een gezin. Onderhoud binnen is netjes, aan de buitenzijde vergt het hout en schilderwerk aan de achterzijde van de bovenverdieping aandacht. Deels voorzien van dubbel glas. Negen zonnepanelen.

Indeling
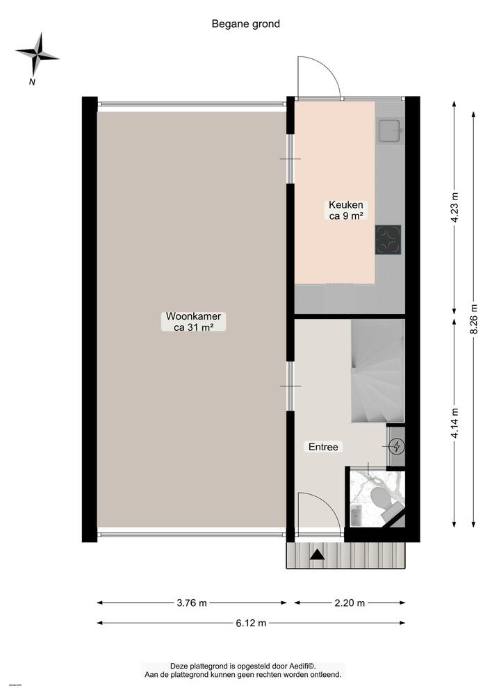
Begane grond:
Entree/hal met laminaatvloer, trapopgang en een toilet met fonteintje.
De lichte doorzonwoonkamer (ca. 32 m²) eveneens voorzien van een laminaatvloer en dubbel glas. Doorloop naar de keuken (ca. 9 m²).
Moderne inbouwkeuken (2022) welke is voorzien van alle gemakken: Quooker, vaatwasser, koelkast, vriezer, oven, separate magnetroncombi, inductiekookplaat en afzuigkap. Loopdeur naar de tuin.

Eerste verdieping: Overloop met grote inloopkast en trapopgang naar de tweede verdieping.
Drie ruime en praktische slaapkamers van ca. 16 m² (met vaste kastenwand), 12 m² (eveneens met kastenwand) en 9 m².
De badkamer (ca. 4 m²) voorzien van een inloopdouche, hangend toilet, wastafelmeubel en een handdoekradiator.

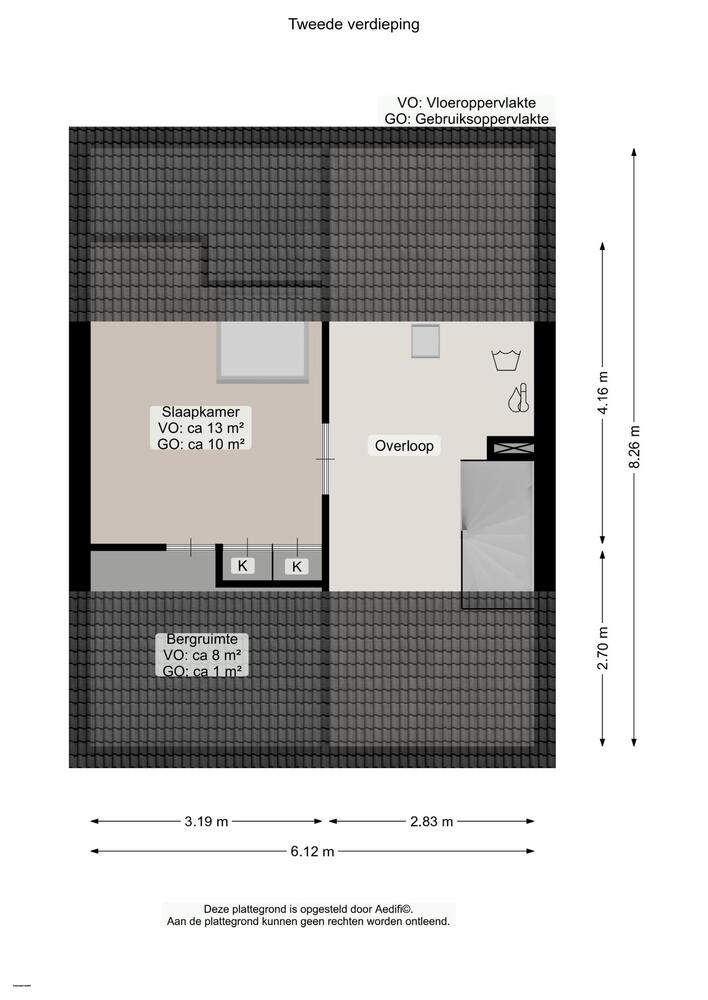
Tweede verdieping: ruime overloop/zolderruimte met aansluiting voor de wasmachine en de opstelling van de cv-combiketel.
Ruime slaap- of hobbykamer (ca. 12 m²) met dakraam en aanzienlijk wat bergruimte.

Zonnige tuin op het zuiden voorzien van een vrijstaande stenen berging (ca. 10 m2) en achterom.

Bijzonderheden:
- Gelegen aan een rustig hofje, ideaal voor gezinnen met kinderen;
- negen zonnepanelen
- geen bevingsschade gemeld
- moderne en complete keuken.

Kenmerken

  • Woonhuistype: Tussenwoning
  • Bouwvorm: Bestaande bouw
  • Daktype: Dwarskap
  • Energieklasse: C

Deze woning is al verkocht door ben-s.nl!

Wilt u ook uw woning door een makelaar van ben-s laten verkopen? Vul dan het onderstaande formulier in.