Neem nu contact op! Bel 050-3133000


Korenbloemstraat 8

9713 PW Groningen

€ 265.000 k.k.

Woonoppervlakte
66m2

Perceelopervlakte
65 m2

Bouwjaar
1932

Soort bouw
EENGEZINSWONING

Omschrijving


KORT
Sfeervolle jaren '30 woning in een gezellige straat in de Oosterparkwijk.
De Korenbloemstraat 8 is een heel fijne tussenwoning met een lichte woonkamer, moderne keuken met inbouwapparatuur, aangebouwde berging en twee ruime slaapkamers. En via de achtertuin loop je zo het speeltuintje in of naar één van de twee parken (Oosterpark of Pioenpark).

LOCATIE
In de naaste omgeving van de woning zijn diverse voorzieningen te vinden en het centrum van de stad Groningen en het UMCG liggen op enkele fietsminuten afstand. In de kindvriendelijke wijk is veel groen te vinden, er zijn verschillende parken zoals het Oosterpark en het Pioenpark.

INDELING
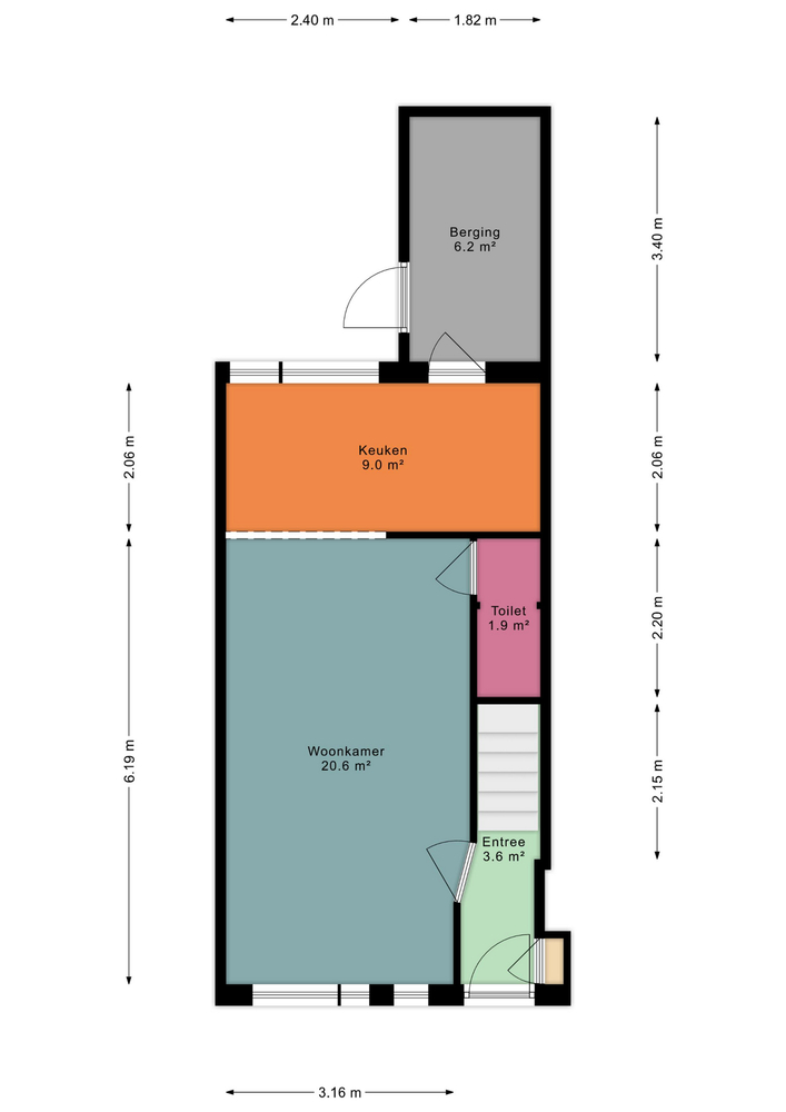
Begane grond: entree met meterkast en trapopgang naar de eerste verdieping, lichte en nette woonkamer met laminaatvloer en een open indeling, moderne keuken met inbouwapparatuur (4-pits gaskookplaat, afzuigkap, oven en koel-vriescombinatie), toilet, berging met wasmachine aansluiting en C.V. ketel, toegang tot de betegelde achtertuin met achterom.

Eerste verdieping:
Overloop met toegang tot 2 slaapkamers van circa 11 m² en 10 m², nette badkamer met douche en wastafelmeubel, vliering met veel opbergruimte toegankelijk via een vlizotrap.

ALGEMEEN
- woonoppervlakte ca. 66 m²;
- inhoud ca. 280 m³;
- perceeloppervlakte 65 m²;
- bouwjaar 1932;
- geheel dubbel glas;
- 6 zonnepanelen;
- energielabel C;
- C.V. ketel 2005 HR-107 (eigendom).

BIJZONDERHEDEN
- standaard waarborgsomregeling van toepassing;
- bekijk onze uitgebreide plattegronden op Funda;
- ouderdomsclausule van toepassing;
- niet zelf bewoningsclausule van toepassing
- aanvaarding in overleg. Kan snel!

Kenmerken

  • Woonhuistype: Tussenwoning
  • Bouwvorm: Bestaande bouw
  • Daktype: Zadeldak
  • Energieklasse: C

Deze woning is al verkocht door ben-s.nl!

Wilt u ook uw woning door een makelaar van ben-s laten verkopen? Vul dan het onderstaande formulier in.