Neem nu contact op! Bel 050-3133000


Thorbeckelaan 168

9722 NJ Groningen

€ 275.000 k.k.

Woonoppervlakte
80m2

Bouwjaar
1967

Omschrijving


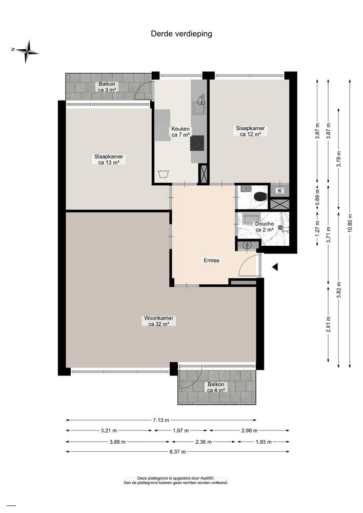
Op een fraaie locatie (met relatief vrij uitzicht op groen en tegenoverliggende bungalows), ruim, licht en onderhoudsarm appartement op de 3de etage (bovenste) met een balkon aan de voor- en achterzijde (West en Oost) en een inpandige berging. Ruime L-vormige woonkamer met voorgelegen ruim balkon, twee grote slaapkamers, moderne keuken en fraaie badkamer.
Gelegen in Helpman/Coenderborg, op korte afstand van voorzieningen. Grotendeels geisoleerd, volledig voorzien van kunststof kozijnen met dubbel glas, gezonder VVE (bijdrage € 132,- per maand), blokverwarming met voorschot € 90,- per maand.
Centrum van Groningen en Haren zijn op fietsafstand.

Indeling:
Begane grond:
gemeenschappelijke afgesloten entree met intercom, trappenhuis, bergingen.
Bovenste (3e) woonlaag: bordes.
Ruime entree/hal met modern toilet, meterkast, vaste kast, intercom en toegang tot alle vertrekken.
Mooie en lichte L-vormige woonkamer (voormalig twee kamers, totaal ca. 32m2, laminaatvloer) met deur naar voorgelegen ruime balkon op west.
Moderne keuken (ca. 7,5 m2) met inbouwapparatuur: vaatwasser, koel-vriescombi, oven, separate magnetron, inductiekookplaat met afzuigkap en deur naar het balkon. Wasmachine aansluiting.
Moderne en smaakvolle badkamer met inloopdouche en wastafelmeubel
Twee royale slaapkamer van 12 en 12 m2.

In het souterrain een ruime fietsenberging.

Bijzonderheden:
- blokverwarming.
- warm water middels badgeiser (eigendom).
- kunststof kozijnen met dubbele beglazing (volledig HR ++ glas).
- inpandige berging van ca. 3.10x2.25m met elektra.
- bijdrage aan de V.v.E. € 222,-- per maand incl. voorschot stookkosten.
- bijdrage VvE gaat ongeveer € 8,- omhoog per Juli.

Kenmerken

  • Bouwvorm: Bestaande bouw
  • Daktype: Plat dak
  • Energieklasse: C

Deze woning is al verkocht door ben-s.nl!

Wilt u ook uw woning door een makelaar van ben-s laten verkopen? Vul dan het onderstaande formulier in.