Neem nu contact op! Bel 050-3133000


Diephuisstraat 23

9714 GT Groningen

€ 325.000 k.k.

Woonoppervlakte
71m2

Perceelopervlakte
156 m2

Bouwjaar
1933

Omschrijving


Heerlijk aan een groen pleintje gelegen, uitermate nette en complete benedenwoning met twee slaapkamers, moderne badkamer en keuken, mooie voortuin en ruime achtertuin met vrijstaande berging en achterom. Volledig voorzien van HR++ glas. Gelegen in de karakteristieke Korrewegwijk/professorenbuurt op korte afstand van voorzieningen en stadscentrum. Ring Groningen op vijf autominuten.

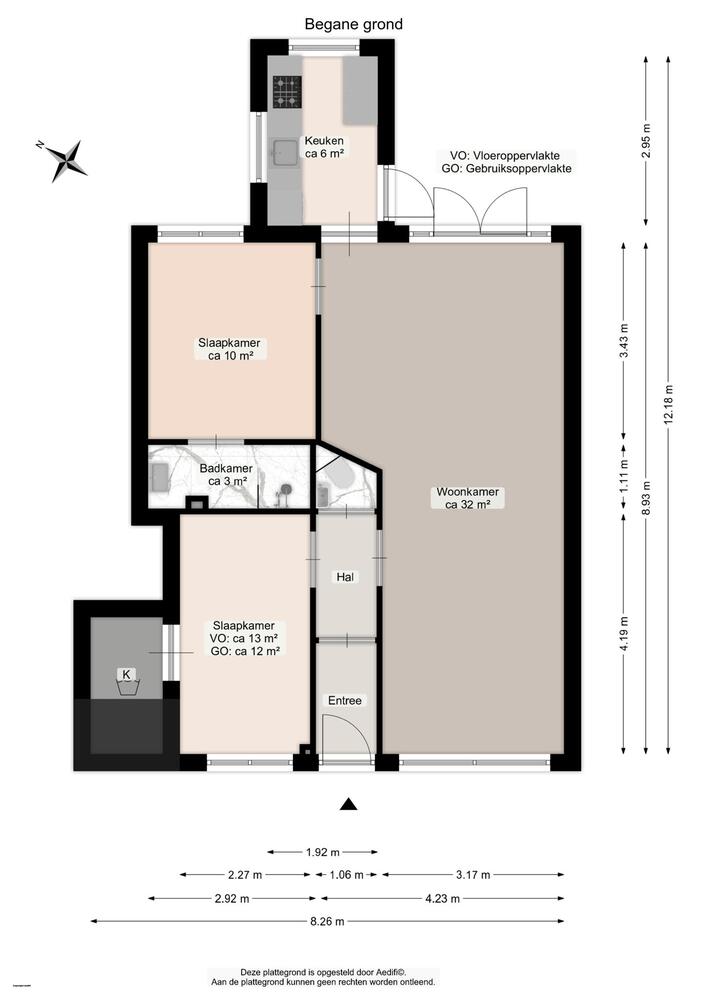
Indeling:
Entree/ tochtportaal en hal met modern toilet en toegang tot woonkamer en voorgelegen slaapkamer.
Royale doorzonwoonkamer (ca. 32 m2) met houten vloerdelen, geornamenteerd plafond, convectorput, openslaande deuren naar de tuin en toegang tot de keuken en achtergelegen slaapkamer. De woonkamer kijkt aan de voorzijde uit op de voortuin en het plein en aan de achterzijde in de tuin.
Moderne en lichte keuken (ca. 6 m2) met twee wandmeubels en inbouwapparatuur: koel-vriescombi, vaatwasser, gaskookplaat met rvs afzuigkap en een ovencombi. Kast met de CV ketel (2015 eigendom). Veel raamoppervlak en zicht op de tuin.
Slaapkamer achterzijde (ca. 10 m2) met badkamer en suite.
Moderne en smaakvolle badkamer (2022, ca. 3 m2) met inloopdouche en wastafelmeubel. Boven de badkamer bevindt zich een kleine vliering.
Slaapkamer voorzijde (ca. 12 m2) met inlooptrapkast die is voorzien van bergplanken en de wasmachineaansluiting.

Royale en mooie achtertuin (ca. 53 m2, ochtend- en middagzon) met ruime vrijstaande stenen berging en achterom.
Ruime en verzorgde voortuin.

Deze fraaie woning ligt aan een karakteristiek en groen pleintje met wat speeltoestellen.

Bijzonderheden:
- Actieve vereniging van eigenaren € 50,- per maand (deel onderhoud en gemeenschappelijke opstalverzekering).
- uitermate verzorgd en compleet
- mooie voor- en achtertuin
- volledig voorzien van HR ++ glas
- schelpenpakket in de kruipruimte
- Karakteristiek pand.

Kenmerken

  • Bouwvorm: Bestaande bouw
  • Energieklasse: C

Deze woning is al verkocht door ben-s.nl!

Wilt u ook uw woning door een makelaar van ben-s laten verkopen? Vul dan het onderstaande formulier in.