Neem nu contact op! Bel 050-3133000


J.M. den Uylstraat 4

9728 RC Groningen

€ 445.000 k.k.

Woonoppervlakte
137m2

Perceelopervlakte
167 m2

Bouwjaar
1990

Soort bouw
EENGEZINSWONING

Omschrijving


In de gewilde wijk Hoornsemeer gelegen royale, energiezuinige (energielabel A+) en goed onderhouden eengezinstussenwoning met tuingerichte L-vormige woonkamer, nette keuken, drie slaapkamers en badkamer op de verdieping en een grote lichte studio op de tweede verdieping. Voortuin, ruime en zonnige achtertuin, vrijstaande houten berging en achterom. Volledig geisoleerd, 12 zonnepanelen en voorzien van Tripple glas (deels) en HR++ glas.
Parkeren voor de deur. Gelegen op loopafstand van recreatiepark Hoornse plas, winkels en bushalte. Uitvalswegen A28 en A7 op paar autominuten.

Indeling:
Hal/entree: modern toilet, meterkast, trapopgang en toegang tot de woonkamer en keuken.
Prachtige tuingerichte woonkamer met studeerhoek (totaal ca. 35 m2) met laminaatvloer en openslaande deuren naar de tuin.
Toog naar de eenvoudige doch nette keuken (ca. 9 m2) welke eveneens is voorzien van laminaatvloer en uitkijkt op de voorliggende straat. Aparte loopdeur naar de hal.

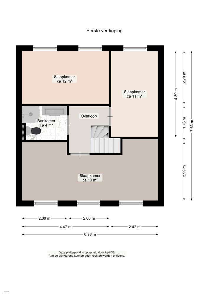
Verdieping: overloop.
Drie ruime en praktische slaapkamers van maar liefst 19, 12 en 11 m2, allen voorzien van laminaatvloer en HR++ glas.
Verzorgde badkamer (2011, 4 m2) met inloopdouche, wastafelmeubel, handdoekradiator, meubel en toilet.

Tweede verdieping:
Riante zolderkamer studio (ca. 27 m2!) met een grote dakkapel (kunststof kozijnen, 2007) en wasmachine aansluiting. CV kast (2022, eigendom, Nefit trendline HRC 25CW4) en wasmachineaansluiting.

Tuin:
Kleine voortuin.
Diepe (12,5 m.!) en zonnige achtertuin van bijna 80 m2, georiënteerd op het oosten (dus zon en schaduwplekken!), met ruime vrijstaande berging en achterom.

Bijzonderheden:
- Licht, comfortabel en uitermate energiezuinige woning met parkeerruimte pal voor de deur
- leuke wijk met veel recreatiemogelijkheden (o.a. wandelgebied, Hoorneplas, Kaap hoorn) op loopafstand
- Leuke woonkamer
- mogelijkheid voor meer slaapkamers op de tweede verdieping
- alle binnendeuren en ramen vervangen
- aanvaarding mogelijk vanaf 15 augustus.

Kenmerken

  • Woonhuistype: Tussenwoning
  • Bouwvorm: Bestaande bouw
  • Daktype: Dwarskap
  • Energieklasse: A_p

Deze woning is al verkocht door ben-s.nl!

Wilt u ook uw woning door een makelaar van ben-s laten verkopen? Vul dan het onderstaande formulier in.