Neem nu contact op! Bel 050-3133000


Briljantstraat 76

9743 NT Groningen

€ 365.000 k.k.

Woonoppervlakte
127m2

Perceelopervlakte
117 m2

Bouwjaar
1970

Soort bouw
EENGEZINSWONING

Omschrijving


Ruime, onderhoudsarme en praktische eengezinstussenwoning (BJ 1970) met gesloten keuken, drie slaapkamers en een nette badkamer op de verdieping en een vierde slaapkamer op de tweede verdieping. Voortuin, fraaie zonnige achtertuin met vrijstaande stenen berging en achterom. De woning beschikt grotendeels over kunststof kozijnen met Hr ++ glas en triple glas.
Uitermate geschikt voor een stel of gezin. Keurig bewoond.
Kindvriendelijke wijk met groot winkelcentrum, scholen, zorg en drie autominuten van de ring van Groningen.

Indeling
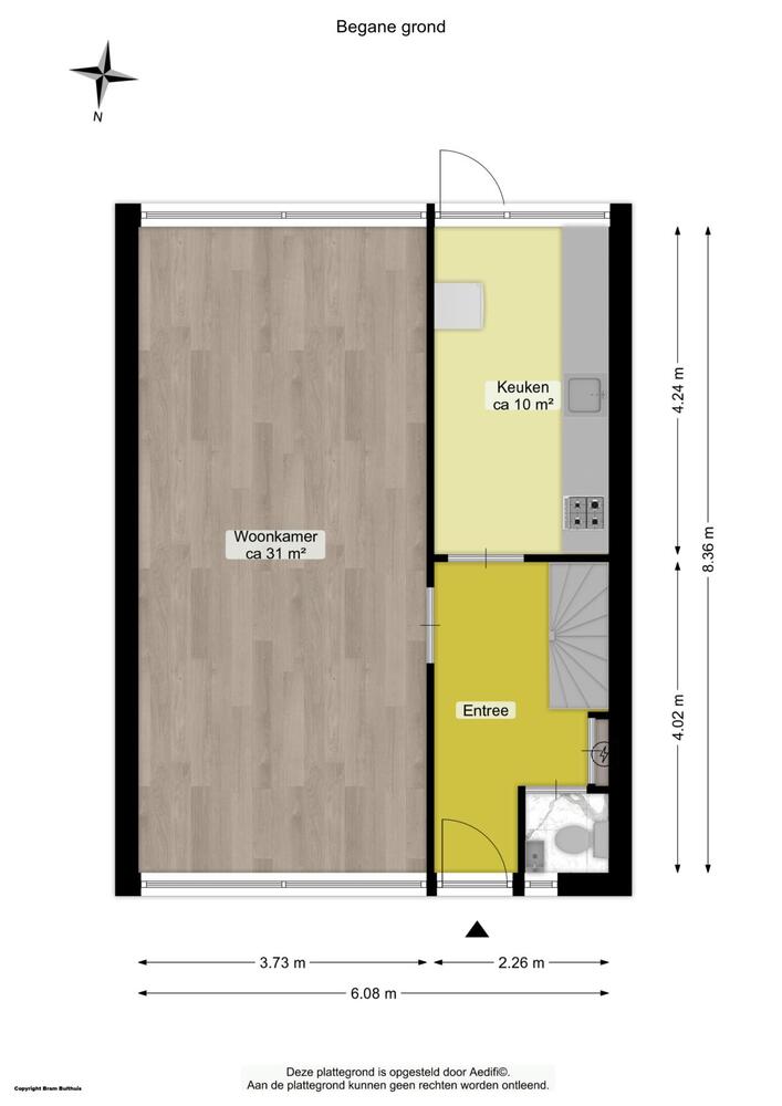
Begane grond:
Entree/hal met trapopgang, toilet en toegang tot de woonkamer en keuken.
De lichte doorzonwoonkamer (ca. 32 m²), voorzien van een moderne pvc-vloer en zicht op de voor- en achtertuin.
Eenvoudige doch nette keuken welke is voorzien van gaskookplaat en afzuigkap. Loopdeur naar de tuin.

Eerste verdieping: Overloop met grote inloopkast en trapopgang naar de tweede verdieping.
Drie ruime en praktische slaapkamers van ca. 17 m² (met vaste kastenwand), 13 m² (eveneens met kastenwand) en 9 m².
Verzorgde badkamer (ca. 4 m²) voorzien van een inloopdouche, hangend toilet, wastafelmeubel en een handdoekradiator.

Tweede verdieping: ruime overloop/zolderruimte met aansluiting voor de wasmachine en de opstelling van de cv-combiketel (2014 HR combi).
Ruime slaap- of hobbykamer (ca. 11 m²) met dakraam en aanzienlijk wat bergruimte in vaste kasten.

Zonnige en fraaie tuin op het zuiden (ca. 9 bij 6,6 m.) voorzien van een vrijstaande stenen berging (ca. 10 m2) en achterom.

Bijzonderheden:
- Keurig onderhouden (grotendeels kunststof kozijnen met triple glas, schilderwerk 2024)
- energiezuinig (energielabel B)
- elektrische zonwering/rolluiken over gehele achterkant
- volledig voorzien van horren
- groepenkast recentelijk vervangen inclusief voorbereiding inductiekoken
- voorkeur oplevering 1 september 2025.

Kenmerken

  • Woonhuistype: Tussenwoning
  • Bouwvorm: Bestaande bouw
  • Daktype: Dwarskap
  • Energieklasse: B

Deze woning is al verkocht door ben-s.nl!

Wilt u ook uw woning door een makelaar van ben-s laten verkopen? Vul dan het onderstaande formulier in.