Neem nu contact op! Bel 050-3133000


Nieuwe Blekerstraat 39

9718 EE Groningen

€ 279.500 k.k.

Woonoppervlakte
59m2

Perceelopervlakte
51 m2

Bouwjaar
1897

Soort bouw
EENGEZINSWONING

Omschrijving


Prachtig gerenoveerde, karakteristieke en goed onderhouden schipperswoning, gelegen op loopafstand van hartje stad, Noorderplantsoen en Westerhaven. Volledig voorzien van dubbel glas, dakisolatie en een kleikorrelpakket onder de vloer. Centraal in de gewilde Schildersbuurt gelegen en op korte afstand van uitvalswegen A7 en A28.

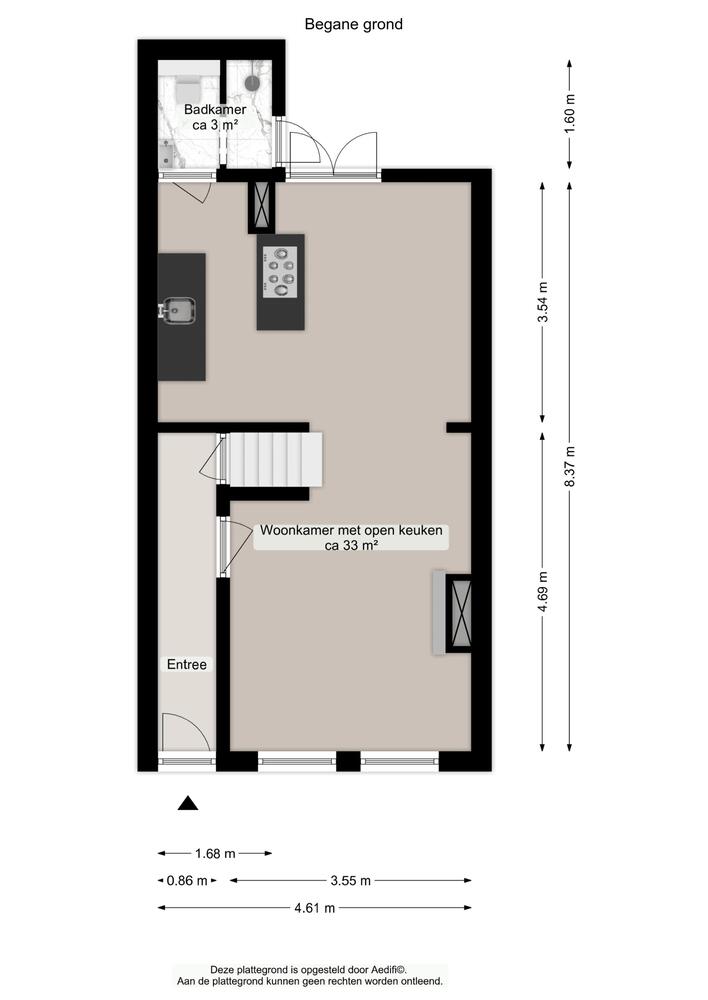
Indeling:
Hal/entree met trapopgang en toegang tot de keuken/woonkamer.
Fraaie karakteristieke woonkamer met open woonkeuken (tezamen ca. 33 m2) met hoog balkenplafond en (nieuwe) openslaande deuren naar de plaats. Gezellige voorkamer (ca. 13 m2) met schouw, houtkachel, glas-in-loodramen, houten vloerdelen en een fraai geornamenteerd plafond.
Leuke woonkeuken met smaakvolle inrichting: o.a. een kookschiereiland, vaatwasser, vrijstaande koelkast en openslaande tuindeuren naar de plaats.
Achter de keuken bevindt zich een moderne toilet/douchecombinatie (ca. 3m2) met vaste wastafel en deur naar de plaats. Kast met CV ketel (ouder exemplaar).
Verdieping: bereikbaar middels een steile trap.
Overloop met nieuw dakraam, wasmachine aansluiting en toegang tot de slaapkamers.
Slaapkamer voorzijde (ca. 6 m2 op 1,5 m. hoog gemeten) met dakkapel, luiken en nieuw dakraam.
Slaapkamer achterzijde (ca. 5 m2 op 1,5 m. hoog gemeten) met vaste kastenwand en nieuw dakraam.
Kleine gezellige plaats van ca. 7 m2 in de zomer op de de namiddag- en avondzon.

Bijzonderheden:
- Goed onderhouden, uitermate karakteristiek en keurig bewoond;
- Gewilde locatie op loopafstand van centrum, Westerhaven en Noorderplantsoen;
- Bushalte, scholen, supermarkt allemaal op korte afstand, evenals de ring van Groningen;
- Elektra is volledig vernieuwd;
- Aanvaarding kan snel.

Let op:
- standaard waarborgsomregeling van toepassing
- foto's zijn gemaakt met een groothoeklens
- bekijk onze uitgebreide plattegronden op funda.

Kenmerken

  • Woonhuistype: Tussenwoning
  • Bouwvorm: Bestaande bouw
  • Daktype: Zadeldak
  • Energieklasse: E

Deze woning is al verkocht door ben-s.nl!

Wilt u ook uw woning door een makelaar van ben-s laten verkopen? Vul dan het onderstaande formulier in.