Neem nu contact op! Bel 050-3133000


Moesstraat 251

9717 JT Groningen

€ 275.000 k.k.

Woonoppervlakte
58m2

Perceelopervlakte
52 m2

Bouwjaar
1888

Soort bouw
EENGEZINSWONING

Omschrijving


KORT
Aan de Moesstraat 25 -1 in Groningen staat deze karakteristieke schipperswoning uit 1888. Met een woonoppervlakte van 60 m² en twee kamers biedt het huis ruimte voor wie compact en sfeervol wil wonen. De woning is netjes onderhouden, zowel binnen als buiten, en beschikt over energielabel B, derhalve energiezuinig. Ideaal voor wie graag in een levendige wijk woont, met het Noorderplantsoen op steenworpafstand en het centrum op loopafstand. Het stadstuintje is ruim genoeg voor een gezelschap.

OMGEVING
De Moesstraat ligt in een rustige woonwijk, net ten noorden van het centrum van Groningen. Op loopafstand vind je het Noorderplantsoen, een geliefd stadspark waar je kunt wandelen, sporten of gewoon even zitten. Het Noorderstation is dichtbij, waardoor je snel met het openbaar vervoer de stad uit kunt. Winkels, supermarkten en andere voorzieningen zijn in de buurt, net als gezellige cafés en restaurants. De ligging maakt het makkelijk om zowel de binnenstad als uitvalswegen te bereiken.

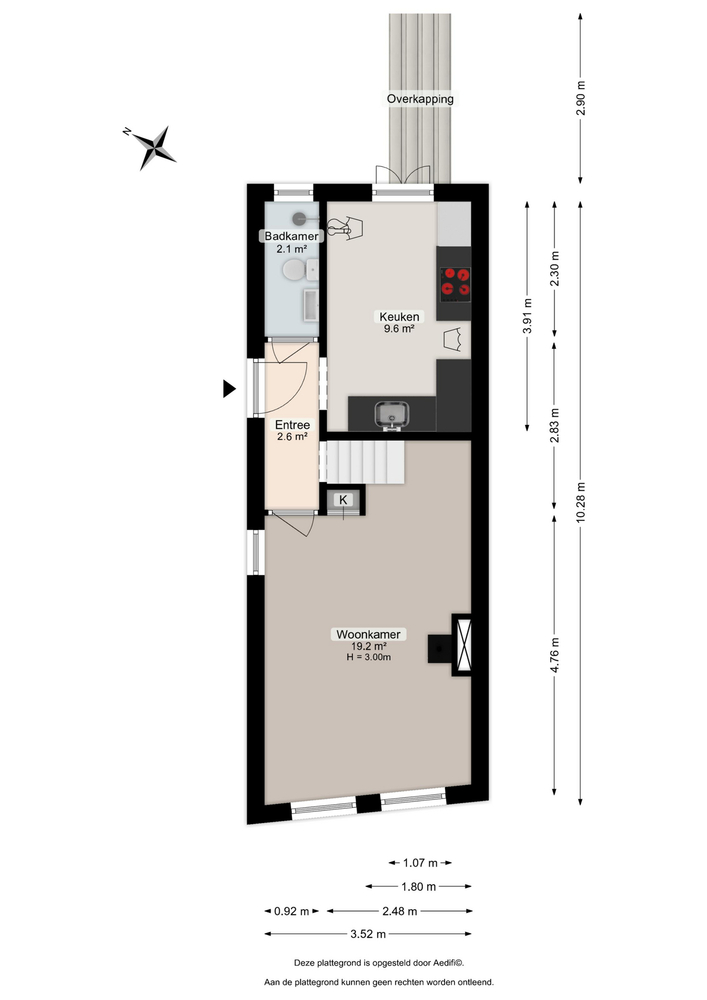
INDELING
Entree via een afgesloten doorgang naar de voordeur.
Hal/entree welke toegang geeft tot de verschillende vertrekken.
De sfeervolle woonkamer (19 m2) ligt aan de straatzijde. Een schouw, een hoog en karakteristiek balkenplafond met eveneens hoge ramen, derhalve veel lichtinval. Een voormalig bestede biedt ruimte voor een gezellig leeshoekje.
Leuke moderne woonkeuken (10 m2, 2024) met inrichting in hoekopstelling, voorzien van alle gemakken: vaatwasser, oven, koelvriescombi en inductieplaat met afzuigkap. Kast met CV ketel en de wasmachine aansluiting. Loopdeur naar de stadstuin, waar je op een zonnige dag de deur openzet voor frisse lucht.
Badkamer (ca. 2 m2, 2018) met toilet, inloopdouche en vaste wastafel.
Verdieping: overloop
Twee gezellige slaapkamers onder de kap van 10 en 8 m2.
Stadstuin, groot deel van de dag in de zon (ca. 12 m2 ).

ALGEMEEN
- Bouwjaar 1888
- energielabel B (geldig tot 04-09-2035)
- goed onderhouden binnen en buiten
- grotendeels gerenoveerd: dak renovatie 2011, vloeren 2009, keuken 2024, badkamer 2018, elektra gemoderniseerd
- onder de houten vloeren liggen drowachips
- waterontharder
- schilderwerk voorzijde 2025
- Achtertuin (12 m²) op het noordenoosten
- Openbaar parkeren, betaald parkeren en parkeervergunningen mogelijk.

Kenmerken

  • Woonhuistype: Twee_onder_een_kapwoning
  • Bouwvorm: Bestaande bouw
  • Daktype: Zadeldak
  • Energieklasse: B

Bezichtig deze woning.

Vul dit formulier in om direct een vrijblijvende bezichtiging in te plannen.