Neem nu contact op! Bel 050-3133000


Tweede Spoorstraat 23

9718 PC Groningen

€ 435.000 k.k.

Woonoppervlakte
93m2

Perceelopervlakte
96 m2

Bouwjaar
1906

Soort bouw
EENGEZINSWONING

Omschrijving


Karaktervolle, ruime en luxe schipperswoning, grote woonkeuken, drie slaapkamers, prachtige badkamer, riante tuin, uitermate smaakvol, luxe en compleet.

Aan de rand van de geliefde Schilderswijk staat deze sfeervolle schipperswoning, een huis dat historie en eigentijds wooncomfort prachtig combineert. Met een royaal woonoppervlak, drie slaapkamers, uitermate compleet en een enorme tuin is dit een plek, waar de liefhebber zich direct thuis voelt.
De ligging is ideaal: op fietsafstand van het centrum, de Westerhaven en het Centraal Station. Binnen vijf minuten rijden bereikt je de uitvalswegen A7 en A28. Grotendeels geïsoleerd (wand, dak, kruipruimte en dubbel glas), 8 zonnepanelen, energielabel D.

Indeling:
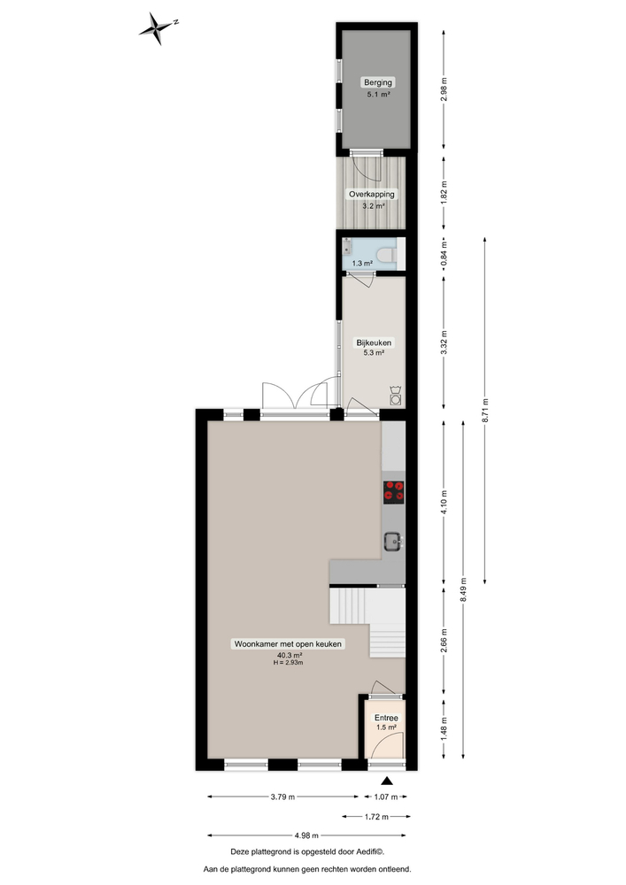
Sfeervolle hal/entree met glas-in-loodraam, een vernieuwde geïsoleerde deur en behoud van het originele karakter.
De begane grond verwelkomt je met een sfeervolle, lichte en hoge woonkamer met open keuken, samen maar liefst 40m². Grote ramen zorgen voor een prettige lichtinval, terwijl de houten vloer, het balkenplafond en de strakke afwerking warmte en stijl uitstralen.
De woonkeuken is modern uitgevoerd en in hoekopstelling, voorzien van inbouwapparatuur, waaronder een vaatwasser, inductiekookplaat, afzuigkap, combi-oven, separate oven en een koel-vriescombinatie. Het kook- en werkblad in houtlook sluit mooi aan bij de zwarte kastenwand, wat de ruimte een moderne en luxe uitstraling geeft. Via openslaande deuren kom je op het terras, aangrenzend aan de prachtige tuin.

Achter de keuken bevindt zich de praktische bijkeuken (ca. 5 m²) met aansluitingen voor wasmachine/droger en een loopdeur naar de tuin. Vanuit hier is tevens een modern toilet bereikbaar.

Verdieping overloop met vaste kast en kast met CV ketel (2020 eigendom).
Op de verdieping zijn drie slaapkamers te vinden. De master bedroom (ca. 9 m2, met grote kastenwand) biedt een rustige sfeer met balkenplafond en zicht op de groene tuin. Deze heerlijke slaapkamer is bereikbaar via de tweede slaapkamer van ca. 10 m2.
Aan de voorzijde bevindt zich een slaapkamer van ca. 8 m2 welke is voorzien van een dakkapel en kastenwand.
De luxe badkamer (ca. 7 m2) is uitermate smaakvol en modern ingericht, onder andere met ligbad, tweede toilet, wastafelmeubel en een inloopdouche, uitgevoerd in een stijlvol kleurenpalet van grijs en zwart. Elektrische vloerverwarming te bedienen met een app.

Buiten wacht een verrassend diepe en zonnige achtertuin.
Een comfortabel terras aan de achtergevel, met een overkapping en een praktische berging (ca. 5 m2).
Daarachter ligt een groot grasveld van ca. 150 m2 met een talud, waar de lokale trein langs komt (rijdt langzaam, ca. per uur)
Dit veld is in gebruik van prorail, met een gebruiksovereenkomst. De buren hebben ook een deel in bruikleen afgestaan

Bijzonderheden:
- Deze prachtige woning is in de afgelopen jaren compleet gemoderniseerd en grotendeels geïsoleerd
- uitermate smaakvol aangekleed en afgewerkt
- Achtergevel opnieuw gevoegd in 2025, tuin aangepast
- bodemafsluiter in de kruipruimte (parels) en vloerisolatie
- in 2024: dakpannen + latten vervangen, glas voorzijde, voordeur, laminaat verdieping, deel leidingwerk
- Keuken en laminaat 2021
- badkamerrenovatie 2022
- dak voorzijde + kunststof boeidelen, glas en voordeur 2024
- volledig voorzien van dubbel glas, waarvan deel HR ++
- Luxe keuken en badkamer.

Kenmerken

  • Woonhuistype: Tussenwoning
  • Bouwvorm: Bestaande bouw
  • Daktype: Samengesteld dak
  • Energieklasse: D

Deze woning is al verkocht door ben-s.nl!

Wilt u ook uw woning door een makelaar van ben-s laten verkopen? Vul dan het onderstaande formulier in.