Neem nu contact op! Bel 050-3133000


Amkemaheerd 276

9736 BW Groningen

€ 270.000 k.k.

Woonoppervlakte
103m2

Bouwjaar
1983

Omschrijving


KORT
Aan de Amkemaheerd 276 vind je een grote bovenwoning met een praktische indeling en drie slaapkamers, verdeeld over drie woonlagen. Met 103 m²(!) woonoppervlak en energielabel A is dit een appartement dat past bij wie ruimte zoekt en waarde hecht aan duurzaamheid. De woning is keurig bewoond, uitstekend onderhouden (onder andere door de vve) en voorzien van zonnepanelen. Geschikt voor wie comfortabel wil wonen in een rustige wijk, ideaal voor stellen.

OMGEVING
Deze bovenwoning ligt in Beijum, een groene wijk in Groningen bestaande uit ontzettend veel woonerven. Je woont hier aan een rustige weg, vlak bij een mooie vijver en omringd door wandelpaden en speelplekken. Winkels voor dagelijkse boodschappen zijn op loopafstand, net als basisscholen en openbaar vervoer richting het centrum. De wijk is goed bereikbaar met de auto en fiets, en parkeren kan gewoon openbaar voor de deur. Het gevoel is rustig en praktisch: alles wat je nodig hebt, is dichtbij.

INDELING
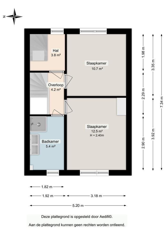
Je komt binnen via de eigen toegang en bereikt de eerste woonlaag. Hier vind je een ontzettend lichte woonkamer van 24 m², met ruimte voor een zit- en eethoek. De compleet vernieuwde keuken (2023) grenst aan de woonkamer en biedt zicht op de woonwijk. Verder is er grenzend aan de woonkamer een heerlijk balkon op het oosten. Dit balkon ligt in de luwte waardoor je bij de eerste zonnestralen direct van de warmte kan genieten. Op de tweede verdieping bevinden zich twee ruim opgezette slaapkamers, de badkamer uit 2014 en de trapopgang naar de derde verdieping. Deze zolder is geschikt als werkplek, hobbyruimte of extra slaapkamer. Dankzij het grote, recent geplaatste dakraam met HR++ glas is er hier ontzettend veel natuurlijk licht. De woning voelt ruim en functioneel, met veel daglicht op alle verdiepingen.

ALGEMEEN
- Bouwjaar: 1983
- Woonoppervlakte: 103 m²
- Inhoud: 360 m³
- Aantal kamers: 4 (waarvan 3 slaapkamers)
- Energielabel: A (geldig tot 29-10-2035)
- Zonnepanelen: 6 stuks, geïnstalleerd in 2022. Meterkast uitgebreid in 2023
- CV-ketel: Remeha Avanta 28C, bouwjaar 2016
- Isolatie: dubbel glas en HR++ glas
- Onderhoud: binnen en buiten goed
- Berging: vrijstaand steen, 6 m², voorzien van elektra
- Parkeren: openbaar, voor de deur

LET OP
- Asbestclausule van toepassing
- Standaard waarborgsomregeling van toepassing
- Bekijk onze uitgebreide plattegronden op Funda
- Aanvaarding in overleg. Voorkeur maart 2026

UITNODIGING
Benieuwd hoe deze woning aanvoelt? Kom gerust kijken en ervaar zelf de ruimte, het licht en de rustige ligging. Je bent welkom voor een bezichtiging – neem contact op en ontdek of dit jouw nieuwe thuis kan worden.

Kenmerken

  • Bouwvorm: Bestaande bouw
  • Daktype: Zadeldak
  • Energieklasse: A

Deze woning is al verkocht door ben-s.nl!

Wilt u ook uw woning door een makelaar van ben-s laten verkopen? Vul dan het onderstaande formulier in.