Neem nu contact op! Bel 050-3133000


Slachthuisstraat 4

9713 MA Groningen

€ 245.000 k.k.

Woonoppervlakte
69m2

Bouwjaar
1988

Omschrijving


KORT
Aan de Slachthuisstraat 4 in Groningen vind je dit heerlijke appartement op de tweede verdieping. Met een woonoppervlakte van 69 m² en energielabel B is het een praktisch, verzorgd en energiezuinige woning. De woning is gestoffeerd, beschikt over airconditioning(!) en heeft een eigen berging op een afgesloten terrein. Door de indeling en het onderhoud is het appartement geschikt voor wie op een toplocatie zonder gedoe wil wonen. Ideaal voor één- of tweepersoonshuishoudens die op zoek zijn naar een nette, goed geïsoleerde woning in de stad.

OMGEVING
De Slachthuisstraat ligt aan de rand van het centrum van Groningen, op loopafstand van het UMCG en het stadscentrum. In de directe omgeving zijn supermarkten, winkels en openbaar vervoer goed bereikbaar. Het Oosterpark en andere groene plekken liggen op korte afstand, wat zorgt voor een prettige balans tussen stedelijk wonen en ontspanning. De ligging maakt het eenvoudig om zowel lopend als met de fiets of het OV je weg te vinden in en rond de stad.

INDELING
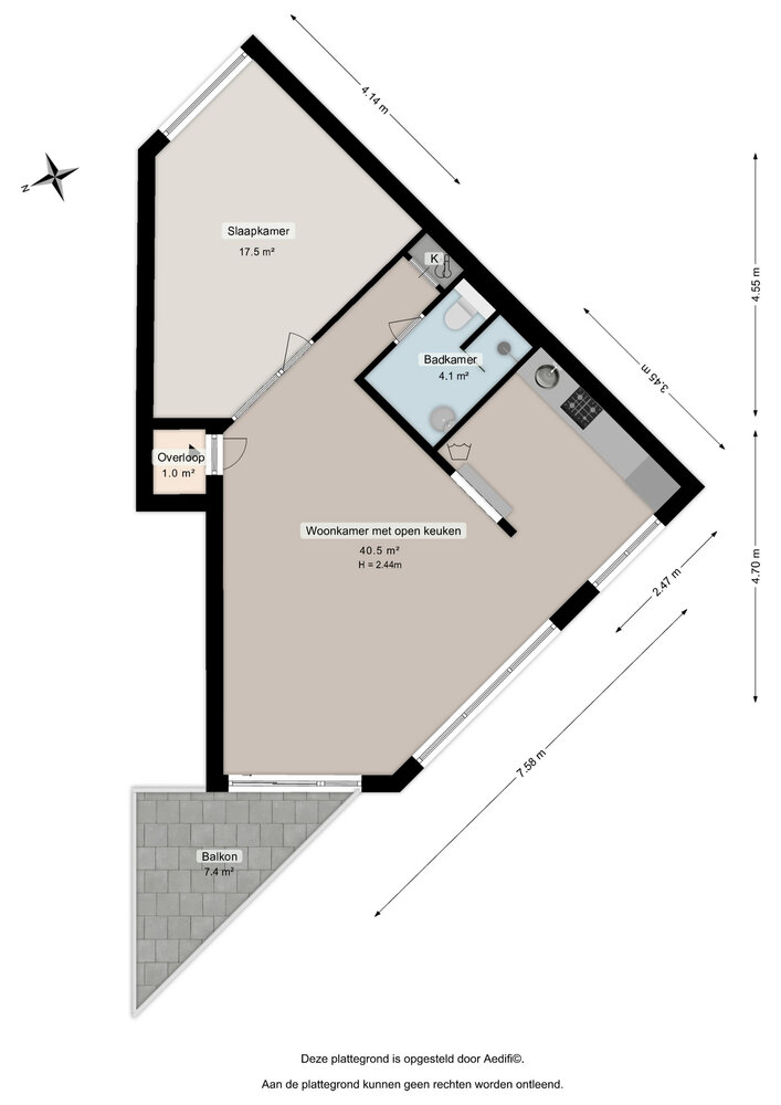
Je komt binnen via het open portiek en bereikt de tweede verdieping. Het appartement bestaat uit één woonlaag, waarbij alle ruimtes praktisch zijn ingedeeld. De woonkamer en keuken zijn ruim genoeg voor een comfortabele inrichting, met veel lichtinval door de grote ramen. De slaapkamer is functioneel en bieden plek voor een bed en veel kastruimte. De badkamer en het toilet zijn netjes afgewerkt. Vanuit de woonkamer stap je zo het balkon op waar je heerlijk kan genieten van de zonnestralen. Beneden is een externe berging van 7 m², handig voor fietsen of opslag.

ALGEMEEN
- Bouwjaar: 1988
- Woonoppervlakte: 69 m²
- Balkon: 7 m²
- Externe berging: 7 m²
- Inhoud: 238 m³
- Energielabel B (geldig tot 06-08-2035)
- Isolatie: volledig voorzien van kunststof kozijnen met HR++ glas
- Verwarming: CV-ketel (2017) en voorzien van airco
- Onderhoud binnen en buiten: goed
- Actieve en gezonde vve; maandbijdrage van €98,96
- Gestoffeerd opgeleverd met veel spullen ter overname

LET OP
- Aanvaarding in overleg, kan snel
- Standaard waarborgsomregeling van toepassing
- Bekijk onze uitgebreide plattegronden op Funda

UITNODIGING
Ben je benieuwd hoe het is om hier te wonen? Maak gerust een afspraak voor een bezichtiging. Je krijgt zo een goed beeld van de ruimte, het comfort en de ligging. Je bent welkom om zelf de sfeer te komen proeven aan de Slachthuisstraat 4.

Kenmerken

  • Bouwvorm: Bestaande bouw
  • Daktype: Plat dak
  • Energieklasse: B

Deze woning is al verkocht door ben-s.nl!

Wilt u ook uw woning door een makelaar van ben-s laten verkopen? Vul dan het onderstaande formulier in.