Neem nu contact op! Bel 050-3133000


IJsselstraat 49a

9725 GC Groningen

€ 235.000 k.k.

Woonoppervlakte
60m2

Omschrijving


KORT
Sfeervolle bovenwoning (bouwjaar 1938) op een prachtige plek. Woonoppervlak ca. 60 m2, keurig bewoond en door de jaren heen netjes onderhouden. Perfecte starterswoning!

LOCATIE
Gelegen in de gewilde Rivierenbuurt aan de zuidkant van de stad op loopafstand van Centraal station en het stadscentrum. Maar ook de uitvalswegen zijn snel en makkelijk bereikbaar.

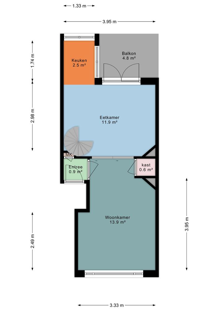
INDELING
Via de opgang bereik je de eerste verdieping met een kleine hal welke toegang geeft tot de ruime en-suite woonkamer met open keuken. Voorkamer (ca. 14 m2) met vaste kast. Achterkamer (ca. 14 m2) met openslaande balkondeuren, een marmeren schouw en aan de achterzijde de keuken. De keuken is voorzien van koel-vriescombinatie, oven, gaskookplaat en afzuigkap. Aan de achterzijde van de woning bevindt zich het balkon (ca. 5 m2) op de namiddag- en avondzon.
Via de open spiltrap in de woonkamer kom je op de tweede verdieping met een riante slaapkamer (ca 15 m2) en moderne badkamer (5 m2) voorzien van douchehoek, wastafel en toilet. Daarnaast is er een handig waskamertje (2 m2) met wasmachineaansluiting en cv-opstelling.

ALGEMEEN
- woonoppervlakte ca. 60m2;
- woning verdeeld over twee woonlagen;
- sfeervolle en-suite kamer;
- riante slaapkamer;
- energielabel E;
- cv-combiketel uit 2025;
- VvE is ingeschreven bij de KvK;
- de fietsenberging in de brandgang verdient aandacht.

LET OP
- standaard waarborgsomregeling van toepassing;
- ouderdomsclausule van toepassing;
- bekijk onze uitgebreide plattegrond op funda;
- aanvaarding in overleg. Kan snel!

Kenmerken

  • Bouwvorm: Bestaande bouw
  • Energieklasse: E

Deze woning is al verkocht door ben-s.nl!

Wilt u ook uw woning door een makelaar van ben-s laten verkopen? Vul dan het onderstaande formulier in.