Neem nu contact op! Bel 050-3133000


Weegschaalstraat 34

9742 NZ Groningen

€ 300.000 k.k.

Woonoppervlakte
102m2

Perceelopervlakte
115 m2

Bouwjaar
1966

Soort bouw
EENGEZINSWONING

Omschrijving


KORT
Aan de Weegschaalstraat 34 in Groningen staat deze tussenwoning uit 1966, met vier slaapkamers en een doorzonkamer. De woning biedt 102 m² woonoppervlak en een ruime bijkeuken, geschikt voor gezinnen of wie graag wat extra ruimte heeft. De achtertuin ligt op het westen en is ook via een achterom bereikbaar. Met een aangebouwde stenen berging en parkeren in de straat heb je hier praktisch wonen in een rustige wijk.

OMGEVING
De Weegschaalstraat ligt in de wijk Paddepoel, aan de noordwestzijde van de stad Groningen. In de directe omgeving vind je het winkelcentrum Paddepoel voor dagelijkse boodschappen en andere voorzieningen. Openbaar vervoer is goed geregeld, met bushaltes op loopafstand en een snelle verbinding naar het centrum en het Zernikecomplex. Groen is dichtbij: het Reitdiepgebied en het Noorderplantsoen zijn eenvoudig bereikbaar. De wijk is goed ontsloten richting de ringweg en uitvalswegen.

INDELING
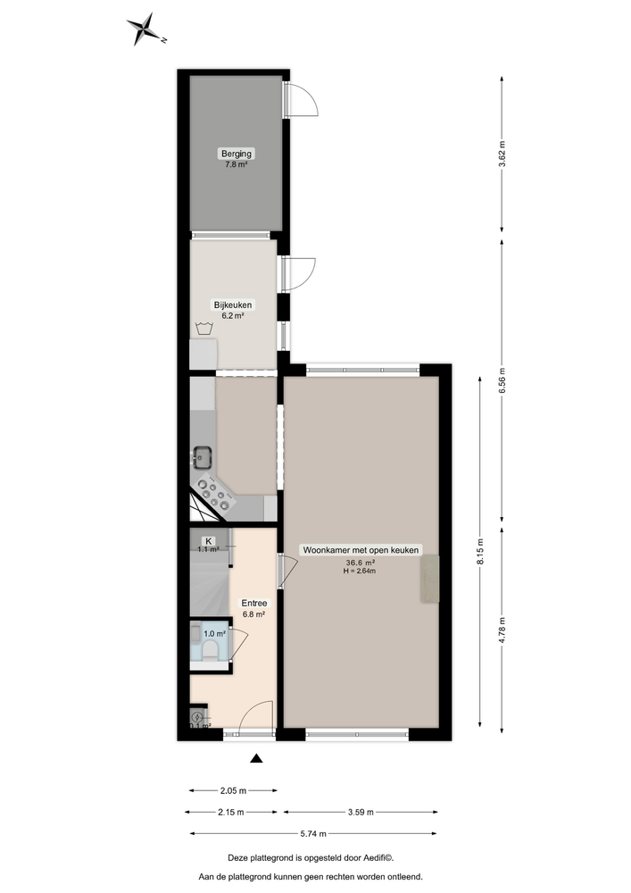
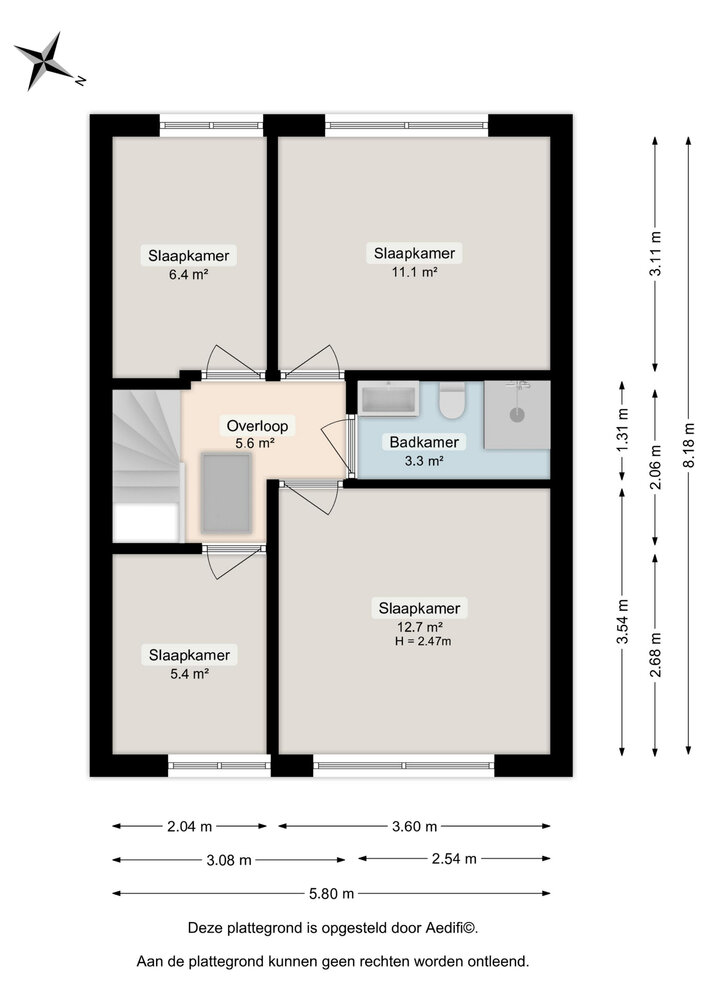
Je komt binnen in de hal met toegang tot de heerlijk lichte woonkamer. De halfopen keuken sluit aan op de woonkamer en biedt ruimte om gezellig met gasten te tafelen. Vanuit de keuken loop je door naar de handige bijkeuken, ideaal voor extra opslag of het plaatsen van witgoed. Op de eerste verdieping zijn vier slaapkamers, elk met veel daglicht. De badkamer is compact en praktisch ingericht met douche, toilet en wastafel. Het omtoveren van een slaapkamer naar badkamer behoort ook zeker tot de mogelijkheden. De zolderruimte biedt extra bergruimte, bereikbaar via een vlizotrap. De achtertuin op het westen is 50 m² groot en heeft een achterom, waardoor je makkelijk met de fiets achterom kunt.

ALGEMEEN
- Bouwjaar 1966
- Woonoppervlakte 102 m²
- Inhoud 456 m³
- Vier slaapkamers
- Ruime bijkeuken
- Achtertuin op het westen (50 m²) met achterom
- Aangebouwde stenen berging met elektra
- Vloerisolatie, grotendeels dubbelglas, HR-glas en vloerisolatie
- Gedeeltelijk kunststof kozijnen met HR++ beglazing
- Energielabel: C, geldig tot 2035
- Verwarming en warm water via CV-ketel uit 2002

LET OP
- Standaard waarborgsomregeling van toepassing
- Asbestclausule van toepassing
- Ouderdomsclausule van toepassing
- Aanvaarding in overleg, kan snel

UITNODIGING
Ben je benieuwd naar de ruimte en mogelijkheden van deze woning aan de Weegschaalstraat? Maak gerust een afspraak voor een bezichtiging en ervaar zelf hoe het huis aanvoelt. Je bent welkom om te komen kijken.

Kenmerken

  • Woonhuistype: Tussenwoning
  • Bouwvorm: Bestaande bouw
  • Daktype: Zadeldak
  • Energieklasse: C

Deze woning is al verkocht door ben-s.nl!

Wilt u ook uw woning door een makelaar van ben-s laten verkopen? Vul dan het onderstaande formulier in.