Neem nu contact op! Bel 050-3133000


Prinsesseweg 91a

9717 BE Groningen

€ 300.000 k.k.

Woonoppervlakte
84m2

Bouwjaar
1929

Omschrijving


Instapklare, lichte en sfeervolle jaren ’30 bovenwoning (twee-laags, type maisonnette).

De woning beschikt over een ruime woonkamer, een semi-open keuken met bijkeuken, een zonnig balkon op het zuidoosten en drie slaapkamers.
Daarnaast is er veel praktische bergruimte, waaronder een ruime zolder bereikbaar via een vlizo-trap en een stenen fietsenberging in de afgesloten gemeenschappelijke buitenruimte aan de achterzijde.
De woning ligt aan een rustige doodlopende straat met vrij uitzicht over een brede groenstrook en speelveld, in de populaire Oranjebuurt. Het Noorderplantsoen en het Noorderstation bevinden zich op loopafstand, het bruisende centrum van Groningen is binnen enkele minuten per fiets bereikbaar.
Dit gezellige appartement is tot slot keurig bewoond en goed onderhouden via een gezonde en actieve VvE met een maandelijkse bijdrage van € 130,-. De woning is grotendeels geïsoleerd, volledig voorzien van HR++ glas en heeft energielabel C. Winkelcentrum Paddepoel ligt dichtbij en ook de ringweg is binnen circa 5 minuten met de auto bereikbaar. Parkeren kan direct voor de deur met vergunning.

Indeling
Entree: Entree/hal met trapopgang naar de eerste verdieping.

Eerste verdieping: Overloop met toilet en toegang tot de woonkamer en keuken.
Lichte L-vormige woonkamer (ca. 20 m²) met vrij uitzicht over het groene veld aan de voorzijde.
Semi-open keuken (ca. 9 m²), voorzien van koelkast, combi-oven, vaatwasser, 4-pits gasfornuis en afzuigkap.
Aansluitend een praktische wasruimte (ca. 3 m²), ideaal voor extra opslag.
Zonnig balkon (ca. 5 m²) op het zuidoosten: een fijne plek voor een kop koffie in de ochtend.

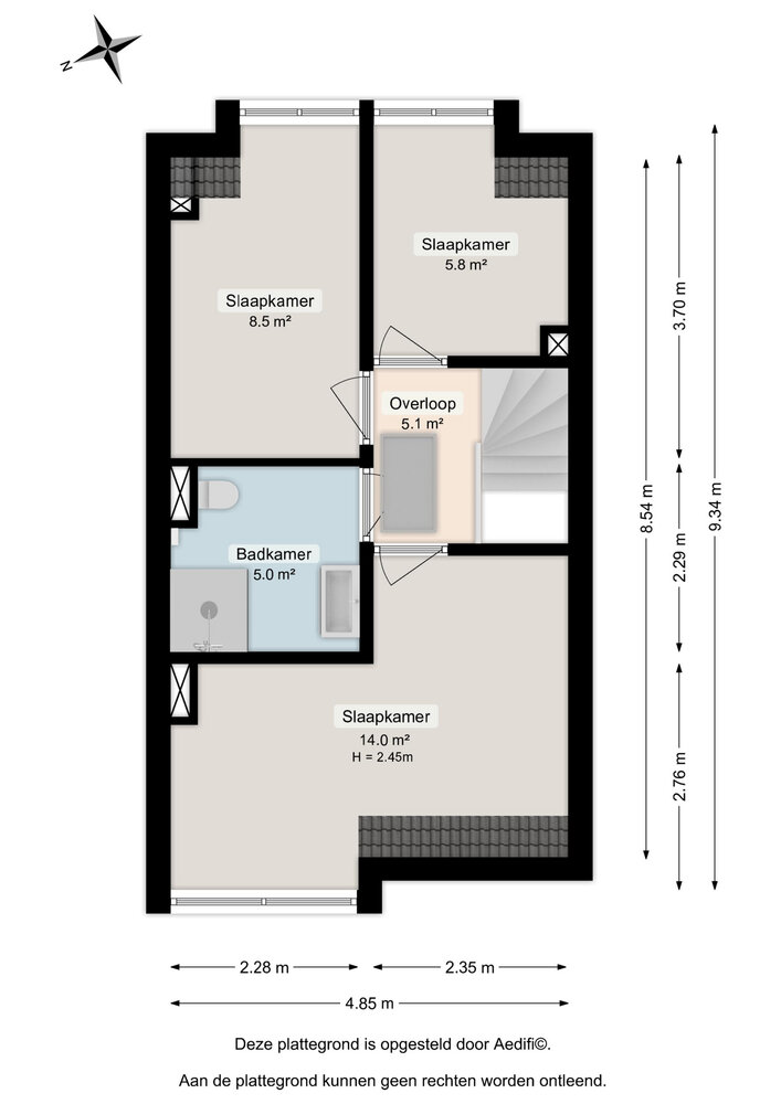
Tweede verdieping: Overloop met toegang tot drie slaapkamers en de badkamer.
Ruime slaapkamer aan de voorzijde (ca. 14 m²).
Aan de achterzijde twee slaapkamers van ca. 9 m² en ca. 6 m², uitstekend te gebruiken als werk-, hobby- of logeerkamer.
Moderne badkamer (ca. 5 m²) met inloopdouche, opbouw regendouche, wastafelmeubel en tweede toilet.

Zolder: Ruime zolder bereikbaar via een vlizo-trap met opstelplaats van de cv-ketel.

Buitenruimte: Stenen fietsenberging in de afgesloten gemeenschappelijke buitenruimte aan de achterzijde, exclusief toegankelijk voor VvE-leden.

Bijzonderheden:
Instapklare bovenwoning / maisonnette
Ideaal voor starters
Gezonde en actieve VvE
VvE-bijdrage: € 130,- per maand
Energielabel C en volledig HR++ glas
CV lease ketel 2014 (ketel word augustus 2026 eigendom)
Zonnig balkon op het zuidoosten
Parkeren voor de deur met vergunning
Rustige ligging met vrij uitzicht, nabij Noorderplantsoen en centrum.

Let op verkoopvoorwaarden van toepassing (zie verkoopvoorwaarden brochure)
- Ouderdomsclausule
- Asbestclausule

Kenmerken

  • Bouwvorm: Bestaande bouw
  • Daktype: Dwarskap
  • Energieklasse: C

Deze woning is al verkocht door ben-s.nl!

Wilt u ook uw woning door een makelaar van ben-s laten verkopen? Vul dan het onderstaande formulier in.