Neem nu contact op! Bel 050-3133000


Briljantstraat 23

9743 NA Groningen

€ 300.000 k.k.

Woonoppervlakte
126m2

Perceelopervlakte
120 m2

Bouwjaar
1970

Soort bouw
EENGEZINSWONING

Omschrijving


KORT
Aan een rustig en kindvriendelijk hofje, in de wijk Vinkhuizen, staat deze ruime en praktisch ingedeelde tussenwoning uit 1970. De woning beschikt over een eenvoudige keuken, vier slaapkamers verdeeld over twee verdiepingen, een zonnige achtertuin op het zuiden en een vrijstaande stenen berging. De ideale gezinswoning. De binnenzijde is eenvoudig aangekleed, aan de achterzijde van de woning behoeft het hout- en schilderwerk aandacht. De woning is deels voorzien van dubbel glas en voorzien van dak- en gevelisolatie.

OMGEVING
Gelegen aan een pad welke onderdeel is van een rustig woonerf. Vinkhuizen is een leuke wijk met vele voorzieningen: scholen, groot winkelcentrum, kinderopvang en hele goede busverbindingen naar de stad.

INDELING
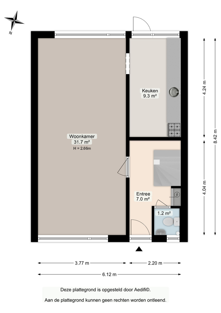
Begane grond:
Entree/hal met laminaatvloer, trapopgang en toilet met fonteintje.
Lichte doorzonwoonkamer (ca. 32 m²) met laminaatvloer met zicht op de voor- en achtertuin.
Eenvoudige dichte keuken (ca. 9 m², eenvoudig bij de woonkamer te betrekken) voorzien van losstaand gasfornuis met oven en afzuigkap en een aansluiting voor de (vaat)wasmachine. Loopdeur naar de tuin.

Eerste verdieping:
Overloop met ruime inloopkast en trapopgang naar de tweede verdieping.
Drie slaapkamers van ca. 16 m² (met vaste kastenwand), 12 m² (eveneens met kastenwand) en 9 m².
Eenvoudige badkamer (ca. 4 m²) met inloopdouche, hangend toilet, vaste wastafel en handdoekradiator.

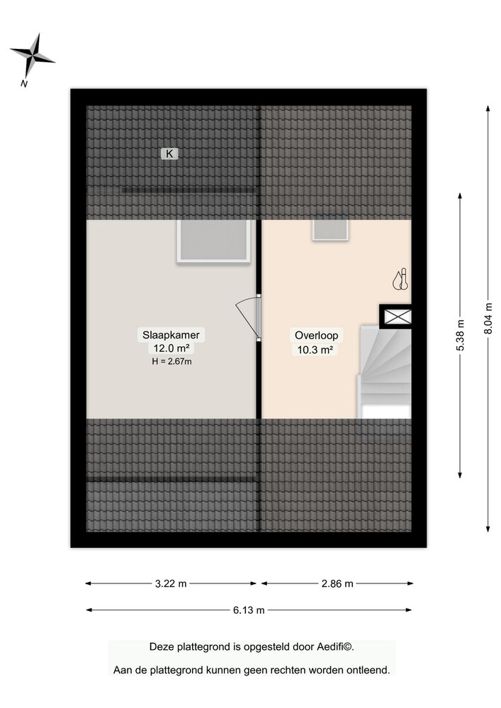
Tweede verdieping:
Ruime overloop/zolderruimte met wasmachineaansluiting en opstelling van de cv-combiketel (2012).
Ruime slaap- of hobbykamer (ca. 12 m²) met dakraam en veel bergruimte.

Zonnige achtertuin op het zuiden (ca. 9 bij 6,4 m.) met vrijstaande stenen berging (ca. 10 m²) en achterom.

ALGEMEEN
- Gelegen aan een rustig en kindvriendelijk hofje
- behoeft enige modernisering
- grotendeels geïsoleerd, energielabel D.

LET OP verkoopvoorwaarden van toepassing (zie verkoopvoorwaarden brochure)
- Ouderdomsclausule
- niet bewonersclausule
- asbestclausule
- waarborgsom.

Kenmerken

  • Woonhuistype: Tussenwoning
  • Bouwvorm: Bestaande bouw
  • Daktype: Dwarskap
  • Energieklasse: D

Deze woning is al verkocht door ben-s.nl!

Wilt u ook uw woning door een makelaar van ben-s laten verkopen? Vul dan het onderstaande formulier in.