Neem nu contact op! Bel 050-3133000


Zaagmuldersweg 125

9713 LA Groningen

€ 250.000 k.k.

Woonoppervlakte
46m2

Bouwjaar
2013

Omschrijving


KORT
Modern en compact appartement (46 m2) met eigen parkeerplaats en berging op een fraaie locatie in Groningen. Energielabel A en instapklaar!

OMGEVING
Het appartementencomplex bevindt zich op de hoek van het Damsterdiep en de Zaagmuldersweg en heeft een ideale ligging ten opzichte van het UMCG, het stadscentrum en het Centraal Station. Voor de deur bevindt zich een bushalte en de ontsluitingswegen van de ring zijn binnen 5 autominuten bereikbaar.

Dit appartement heeft een lichte woon- eetkamer met een gezellig balkon en open keuken voorzien van inbouwapparatuur. Het appartement beschikt over 1 slaapkamer en een nette badkamer. Tevens is er een privé berging en privé parkeerplaats.

INDELING
Begane grond: afgesloten entree met intercom, trappenhuis en lift naar derde verdieping.
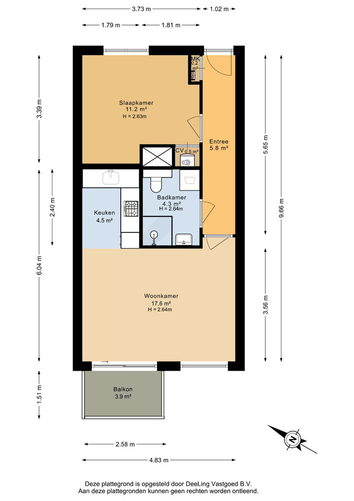
Derde verdieping: entree appartement, gang, woonkamer ca. 22 m2 met een open keuken v.v. inbouwapparatuur. De woonkamer geeft toegang tot een zonnig balkon (4 m2) op het zuidwesten. Via de hal is de slaapkamer van ca. 11 m2 te bereiken. Deze gang geeft tevens toegang tot een nette en betegelde badkamer (4 m2) met een douche, toilet en wastafel. Tevens is hier de opstelplaats voor een wasmachine.

ALGEMEEN
- bouwjaar 2013;
- cv-combiketel (eigendom 2013);
- energielabel A;
- geheel voorzien van dubbele beglazing;
- gezonde en actieve VvE
- maandelijkse bijdrage 127 euro;
- privé parkeerplaats op afgesloten binnenterrein;
- privé berging;
- zorgeloos en comfortabel wonen!

LET OP
- standaard waarborgsomregeling van toepassing;
- 'eigenaar niet zelf bewoond' van toepassing;
- bekijk onze uitgebreide plattegrond op funda;
- aanvaarding in overleg. Kan snel!

Kenmerken

  • Bouwvorm: Bestaande bouw
  • Daktype: Plat dak
  • Energieklasse: A

Deze woning is al verkocht door ben-s.nl!

Wilt u ook uw woning door een makelaar van ben-s laten verkopen? Vul dan het onderstaande formulier in.