Neem nu contact op! Bel 050-3133000


Torenstraat 11

9711 JK Groningen

€ 250.000 k.k.

Woonoppervlakte
58m2

Perceelopervlakte
121 m2

Bouwjaar
1945

Omschrijving


HARTJE CENTRUM | 2 SLAAPKAMERS | BENEDENWONING | MODERNE KEUKEN & BADKAMER | TUIN MET ACHTEROM

Op een rustige locatie in het centrum van Groningen ligt deze strak afgewerkte en gemoderniseerde benedenwoning met twee slaapkamers en een besloten tuin met achterom. Het appartement is in 2015 volledig gerenoveerd en combineert comfortabel wonen met de levendigheid van de binnenstad.

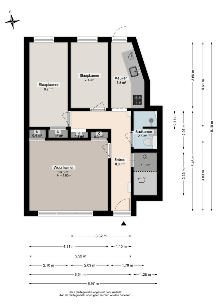
Indeling
Entree/hal met aan de linkerzijde de lichte woonkamer met ruimte voor zowel een gezellige zithoek als eethoek. Vanuit de hal zijn de twee tuingerichte slaapkamers bereikbaar, met oppervlakten van circa 8 en 10 m².

Aan de rechterzijde bevindt zich de trapkast met witgoedaansluiting en de moderne badkamer, voorzien van toilet, wastafelmeubel, inloopdouche en designradiator. Aan het einde van de hal ligt de strakke keuken, uitgerust met diverse inbouwapparatuur zoals een gasfornuis, afzuigkap, vaatwasser en combi-oven. Vanuit de keuken is er directe toegang tot de tuin.

Tuin
De beschutte achtertuin beschikt over een achterom en een vrijstaande stenen berging, ideaal voor fietsen of extra opslag.

Bijzonderheden:
- Energielabel C
- Actieve VvE, bijdrage: € 99,57 p/m
- Fietsenberging aan de voor- en achterzijde van de woning
- Hartje centrum van Groningen
- Moderne keuken met inbouwapparatuur
- Geheel voorzien van dubbelglas

LET OP
- Standaard waarborgsomregeling van toepassing;
- Beschermd stadsgezicht;
- 'eigenaar niet zelf bewoond'- asbest en oudersdomsclausule van toepassing;
- Bekijk onze uitgebreide plattegrond op Funda;
- Aanvaarding in overleg. Kan snel!

Kenmerken

  • Bouwvorm: Bestaande bouw
  • Daktype: Samengesteld dak
  • Energieklasse: C

Deze woning is al verkocht door ben-s.nl!

Wilt u ook uw woning door een makelaar van ben-s laten verkopen? Vul dan het onderstaande formulier in.