Neem nu contact op! Bel 050-3133000


Rivierenhof 56

9725 HB Groningen

€ 249.000 k.k.

Woonoppervlakte
68m2

Bouwjaar
1956

Omschrijving


KORT
Op loopafstand van hartje centrum en in de populaire Rivierenbuurt ligt dit lichte appartement op de derde en tevens bovenste woonlaag van het complex. Het appartement beschikt over een gezellige woonkamer met grote raampartijen, twee ruime slaapkamers, een eenvoudige keuken met moderne badkamer en suite en twee balkons. In het souterrain bevindt zich een ruime fietsenberging. De Vereniging van Eigenaren is actief en de maandelijkse bijdrage bedraagt € 115,-. Het appartement is volledig voorzien van kunststof kozijnen met HR ++ glas.

OMGEVING
De Rivierenbuurt is een geliefde wijk in Groningen en staat bekend om haar centrale ligging en prettige woonomgeving. Het appartement bevindt zich op loopafstand van het centrum, hoofdstation en Stadspark. Uitvalswegen A7 en A28 zijn op 3 autominuten.

INDELING
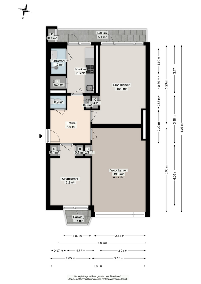
Via het afgesloten portiek bereik je met de trap de derde woonlaag waar zich de entree van het appartement bevindt.

Hal/entree: (ca. 7 m²) met toilet, bergkast, meterkast en toegang tot alle vertrekken.

De woonkamer (ca. 20 m2) bevindt zich aan de voorzijde en heeft zicht op de (brede) voorliggende straat. Verder voorzien van een schouw en vaste kast
Ruime slaapkamer (ca. 16 m2) aan de achterzijde, eveneens voorzien van vaste kast en loopdeur naar het ruime achterliggende balkon op de ochtend- en middagzon.
De tweede slaapkamer bevindt zich aan de voorzijde (ca. 9 m²) en heeft twee vaste kasten en een loopdeur naar het voorliggende balkon op de namiddag en avondzon.
Aan de achterzijde van het appartement ligt de keuken (ca. 6 m²). De keuken is voorzien van apparatuur: koelkast, vaatwasser, gaskookplaat en afzuigkap. CV ketel 2021 (HR combi, eigendom).
Vanuit de keuken is er toegang tot de moderne in 2025 gerenoveerde badkamer (ca. 2 m2).
Deze is voorzien van een douche en vaste wastafel.

Op de begane grond beschikt het appartement over een eigen berging van ca. 6,4 m².

Bijzonderheden:
- Veel parkeergelegenheid pal voor het complex
- volledig voorzien van kunststof kozijnen
- volledig voorzien van HR++ beglazing
- energielabel B
- huishoudelijk reglement van toepassing
- aanvaarding kan snel.

LET OP (zie ook onze verkoopvoorwaarden)
Standaard waarborgsom van toepassing
Standaard ouderdomsclausule
Standaard asbestclausule.

Kenmerken

  • Bouwvorm: Bestaande bouw
  • Daktype: Plat dak
  • Energieklasse: B

Deze woning is al verkocht door ben-s.nl!

Wilt u ook uw woning door een makelaar van ben-s laten verkopen? Vul dan het onderstaande formulier in.