Neem nu contact op! Bel 050-3133000


Parkzijde 17

9713 WE Groningen

€ 285.000 k.k.

Woonoppervlakte
55m2

Bouwjaar
2019

Omschrijving


De moeite waard om te weten. Het appartement Parkzijde 17 heeft in 2025 een grondige facelift gehad. De badkamer en de toiletten zijn fonkelnieuw. Binnen is alles geschilderd en het appartement is voorzien van een nieuwe pvc vloer en trap- en raambekleding. Instapklaar heet dat.

Het meest bijzondere aan dit intieme en karakteristieke appartement is het uitzicht. Vanaf de eerste en tweede woonlaag heb je een onbelemmerde kijk op het prachtige Oosterpark, dat nog dateert uit de jaren twintig van de vorige eeuw en dat door de gemeente voortreffelijk wordt onderhouden. Vanaf april tot aan december zie je zelfs geen huizen meer, alleen maar water en groen.

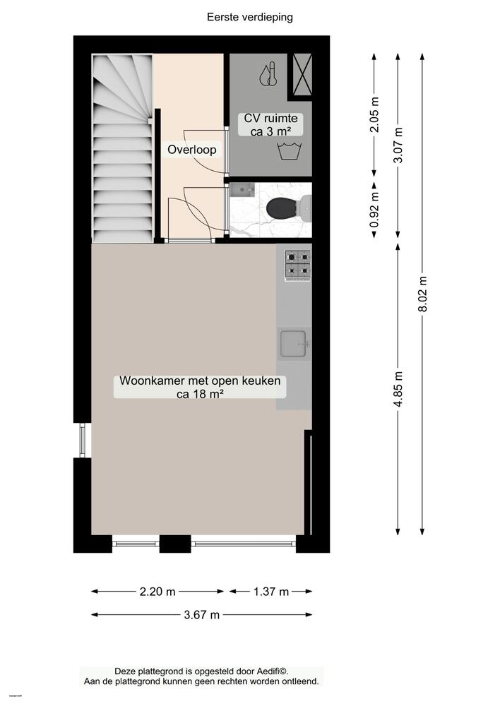
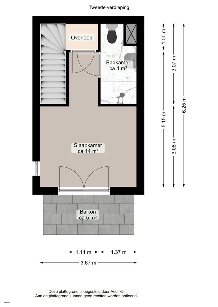
Het gebouw waar het appartement deel van uitmaakt omvat in totaal 7 appartementen. De Parkzijde 17 is anders dan de andere appartementen omdat het 3 woonlagen telt. Bij binnenkomst vind je een hal met meterkast. Je gaat de trap op en komt dan in een tweede, grotere hal met toilet en berging. Die hal leidt naar de lichte woonkamer met keuken (voorzien van alle gemakken). Let op het slimme zijraam, zowel in de woon- als slaapkamer, dat een bijzonder ruimtelijk effect geeft. Vanuit de woonkamer ga je met de trap naar de verrassende tweede woonlaag met openslaande deuren naar het balkon (zon tot in de voormiddag). Daar bevindt zich een hal met nieuwe badkamer en een ruime slaapkamer. Vanaf het balkon geniet je van een spectaculair uitzicht op het Oosterpark. De woning is geheel voorzien van vloerverwarming.

Dit appartement is heerlijk voor starters, ouderen en bijvoorbeeld werknemers van het UMCG die houden van rust, natuur en woonkwaliteit.

Het Oosterpark is een geslaagde mix van nieuwbouw en bestaande bouw. Alle voorzieningen zijn binnen handbereik en in 20 minuten loop je naar het stadscentrum.

Je bent van harte welkom om dit bijzondere appartement te leren kennen.

Kenmerken

  • Bouwvorm: Bestaande bouw
  • Daktype: Plat dak
  • Energieklasse: A

Deze woning is al verkocht door ben-s.nl!

Wilt u ook uw woning door een makelaar van ben-s laten verkopen? Vul dan het onderstaande formulier in.