Neem nu contact op! Bel 050-3133000


Berilstraat 7

9743 HX Groningen

€ 295.000 k.k.

Woonoppervlakte
124m2

Perceelopervlakte
116 m2

Bouwjaar
1970

Soort bouw
EENGEZINSWONING

Omschrijving


Kluswoning met solide basis en mogelijkheden!

Ben je handig en zoek je een woning die je volledig naar eigen wens kunt moderniseren? Dan is deze woning aan de Berilstraat 7 zeker het bekijken waard. De woning is duidelijk gedateerd en vraagt om een grondige aanpak, maar biedt door de kunststof kozijnen met dubbele beglazing, moderne meterkast en 8 zonnepanelen een solide basis om op voort te bouwen.

De woning ligt aan de noordkant van Vinkhuizen, op korte afstand van de ringweg. In de wijk vind je een uitgebreid winkelcentrum, sportverenigingen, scholen en overige voorzieningen. Ook het openbaar vervoer is goed geregeld. Een centrale plek in een kindvriendelijke omgeving waar alles binnen handbereik is.

Indeling:
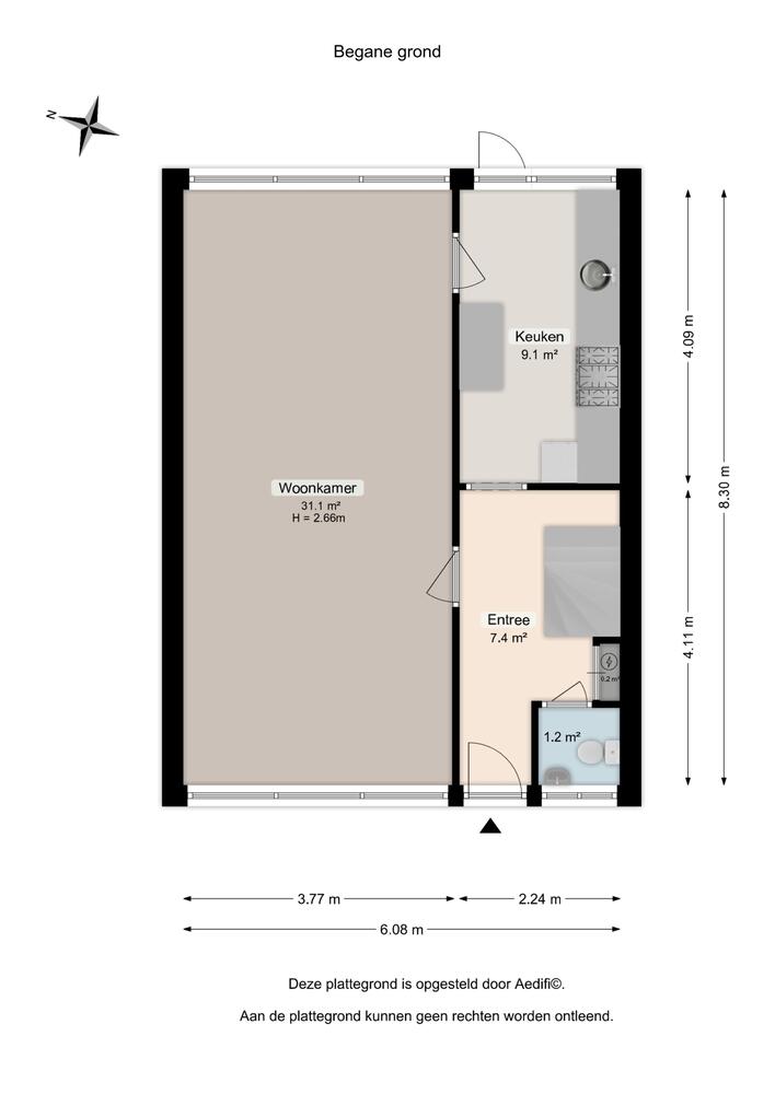
Begane grond:
Hal/entree met toilet en fonteintje en de moderne meterkast. Aan de linkerzijde ligt de lichte woonkamer van circa 31 m². De keuken is bereikbaar vanuit zowel de hal als de woonkamer en geeft toegang tot de achtertuin. De tuin beschikt over een achterom en een stenen (fietsen)berging van ruim 10 m².

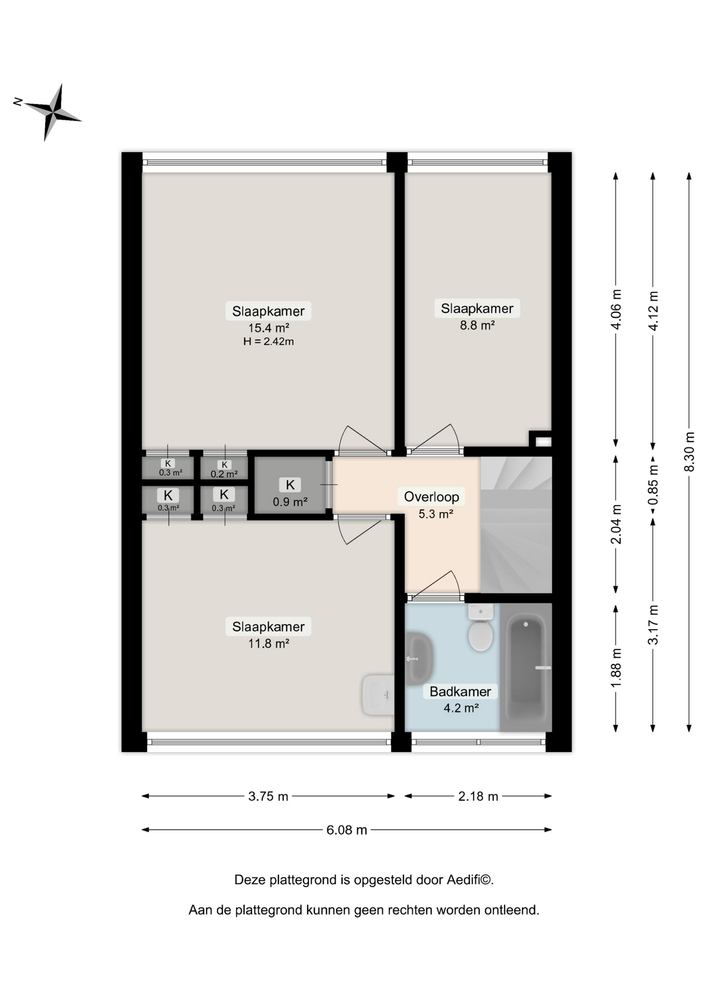
Eerste verdieping:
Overloop met vaste kast. Aan de linkerzijde de badkamer voorzien van tweede toilet, wastafelmeubel en ligbad/douche. Verder drie slaapkamers: één van circa 12 m² met twee vaste kasten, een tweede van ruim 15 m² eveneens met twee vaste kasten, en een derde van circa 9 m².

Tweede verdieping:
Via een vaste trap bereikbare verdieping met overloop, CV-opstelling en een vierde slaapkamer van bijna 10 m², voorzien van dakraam, vaste kast en knieschotbergingen.

Bijzonderheden:
- Energielabel C
- 4 slaapkamers
- Kluswoning met veel potentie
- Volledig voorzien van kunststof kozijnen en dubbele beglazing
- Moderne meterkast
- Voorzien van 8 zonnepanelen
- Geen aardbevingsschade en geen SNN-subsidies geclaimd
- Snelle aanvaarding mogelijk

Kenmerken

  • Woonhuistype: Tussenwoning
  • Bouwvorm: Bestaande bouw
  • Daktype: Zadeldak
  • Energieklasse: C

Bezichtig deze woning.

Vul dit formulier in om direct een vrijblijvende bezichtiging in te plannen.