Neem nu contact op! Bel 050-3133000


Berkelstraat 21b

9725 GV Groningen

€ 275.000 k.k.

Woonoppervlakte
75m2

Bouwjaar
1935

Omschrijving


KORT
Nette, sfeervolle en onlangs gerenoveerde bovenwoning (hoekligging) op een topplekje aan de zuidkant van de stad Groningen. Woonoppervlakte van 75 m2, goed geïsoleerd en heel veel daglichttoetreding. Leuke starterswoning!

OMGEVING
De woning is gelegen in een rustige straat in de gezellige woonomgeving van de Rivierenbuurt met een goede bereikbaarheid naar het centrum en Centraal Station, daarnaast heeft het een goede ontsluiting naar het Julianaplein, A28 en de A7.

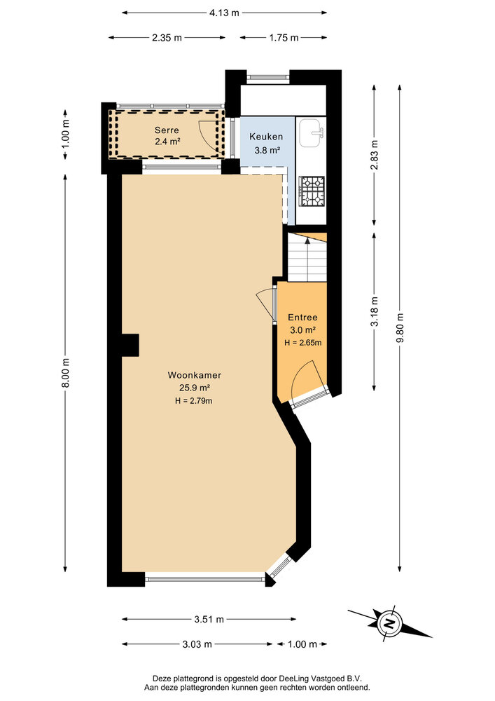
INDELING
Begane grond: trapopgang
Eerste verdieping: entree, hal, lichte woonkamer van circa 30 m2 (zitgedeelte en eetgedeelte) met open keuken incl. vaatwasmachine, kookplaat, koelvries-combinatie en combi-ovenmagnetron. Via de keuken is de entree tot de bijkeuken/serre van bijna 3 m2.
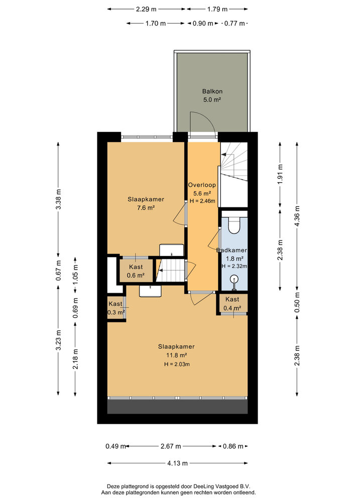
Tweede verdieping: overloop met toegang tot de 2 slaapkamers van12 en 8 m2 met kastruimte en wastafels en een compacte, maar nette badkamer met douche en toilet. Verder nog, niet onbelangrijk, het zonnige dakterrasje van 5 m2!
Derde verdieping: vaste trap naar ruime zolder (met nieuw dakkapel), fijne 3e kamer (10 m2), tevens met aansluiting voor wasmachine.

INFORMATIE
- goed onderhouden;
- onlangs gerenoveerd;
- schilderwerk binnen 2026;
- energielabel C;
- schuurtje in de mandelige gang;
- cv-verwarmd (eigendom, 2022);
- dubbel glas (HR++);
- spouwmuurisolatie en dakisolatie.

LET OP
- standaard waarborgsomregeling van toepassing;
- ouderdomsclausule van toepassing;
- 'eigenaar niet zelf bewoond' clausule van toepassing;
- VvE is slapend, wel ingeschreven in de KvK;
- bekijk onze uitgebreide plattegronden op funda;
- aanvaarding in overleg. Kan snel!

Kenmerken

  • Bouwvorm: Bestaande bouw
  • Daktype: Samengesteld dak
  • Energieklasse: C

Bezichtig deze woning.

Vul dit formulier in om direct een vrijblijvende bezichtiging in te plannen.