Neem nu contact op! Bel 050-3133000


Middenstraat 2b

9724 JB Groningen

€ 190.000 k.k.

Woonoppervlakte
32m2

Bouwjaar
1915

Omschrijving


Stap binnen in dit ideale startersappartement in de geliefde wijk Oosterpoort, waar stijl en comfort samenkomen. De elegante visgraatvloer geeft de woning direct een warme en luxe uitstraling, een plek waar je jezelf meteen thuis zult voelen.

Algemeen

Gelegen in de karakteristieke en levendige Oosterpoort, biedt dit charmante appartement het beste van twee werelden. Geniet van de gezellige sfeer van de wijk met leuke winkels, restaurants en cafés om de hoek, terwijl het bruisende centrum van Groningen zich op loopafstand bevindt. Daarnaast ben je binnen enkele minuten onderweg via de A7 en A28.

Indeling

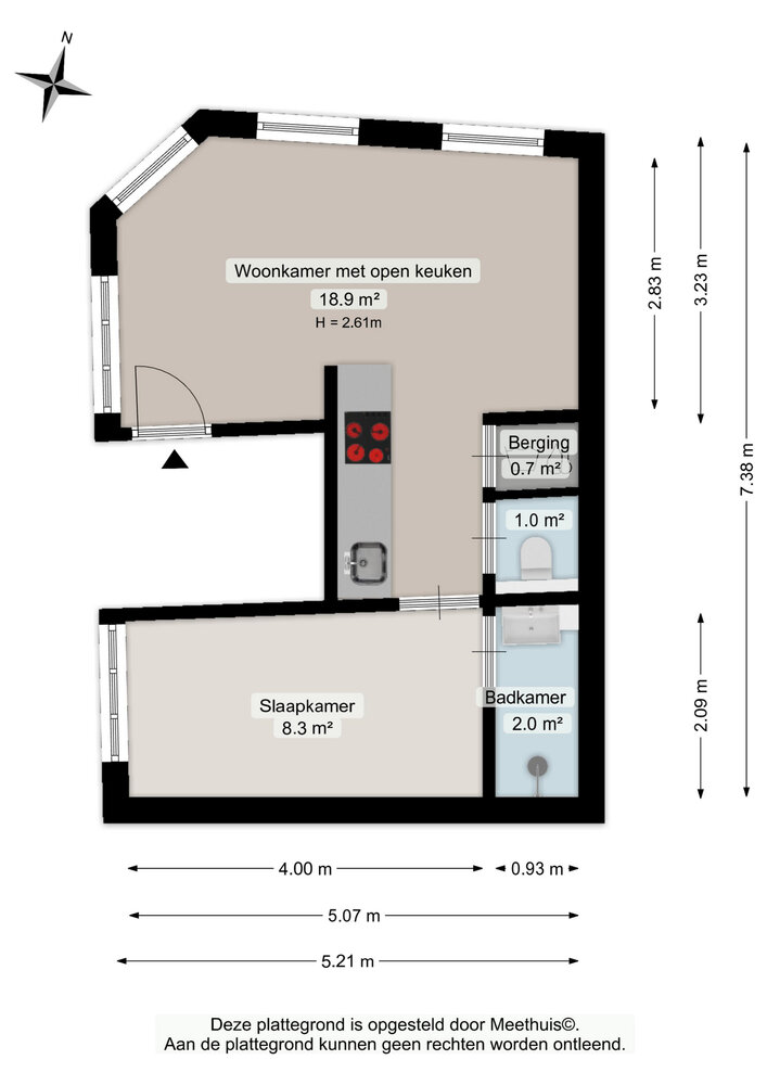
Via de gezamenlijke entree en trapopgang bereik je de tweede verdieping, waar dit appartement je verwelkomt. De lichte woonkamer, met de grote raampartijen, zorgt voor een prettige en open sfeer. De ruime keuken is praktisch ingericht en voorzien van alle basisgemakken, zoals een inductieplaat, vaatwasser, afzuigkap, combi-oven en koelkast met vriesvak. In de CV-ruimte is ook plek voor de wasmachine. De slaapkamer is een fijne en rustige plek, compleet met een inloopdouche en een stijlvol wastafelmeubel.

Omgeving

Wonen in de Oosterpoort betekent genieten van een perfecte balans tussen rust en levendigheid. Alle voorzieningen liggen binnen handbereik en ook de binnenstad is eenvoudig te voet bereikbaar. Ideaal voor wie houdt van gemak en gezelligheid. Ook is het nieuw gerealiseerde Zuiderplantsoen om de hoek.

Bijzonderheden

- In de afgelopen jaren in de woning gemoderniseerd
- De woning is volledig voorzien van dubbel glas
- Recent schilderwerk aan zowel de binnen- als buitenkant van de woning
- Centrale ligging nabij universiteiten, winkels, uitgaansgelegenheden en het openbaar vervoer
- Gelegen in een super populair gedeelte van de wijk
- Onderdeel van een actieve vve, maandelijkse bijdrage €150

Kortom: een charmant, instapklaar appartement op een toplocatie. Absoluut het bezichtigen waard!

Kenmerken

  • Bouwvorm: Bestaande bouw
  • Daktype: Plat dak
  • Energieklasse: A

Bezichtig deze woning.

Vul dit formulier in om direct een vrijblijvende bezichtiging in te plannen.